EasyManua.ls Logo

Sony HCD-VX5A - Schematic Diagram - MAIN Board (3;4)

Sony HCD-VX5A
86 pages
Print Icon
To Next Page IconTo Next Page
To Next Page IconTo Next Page
To Previous Page IconTo Previous Page
To Previous Page IconTo Previous Page
Loading...
HCD-VX5A/VX5AJ/VX7A
– 61 –
– 62 –
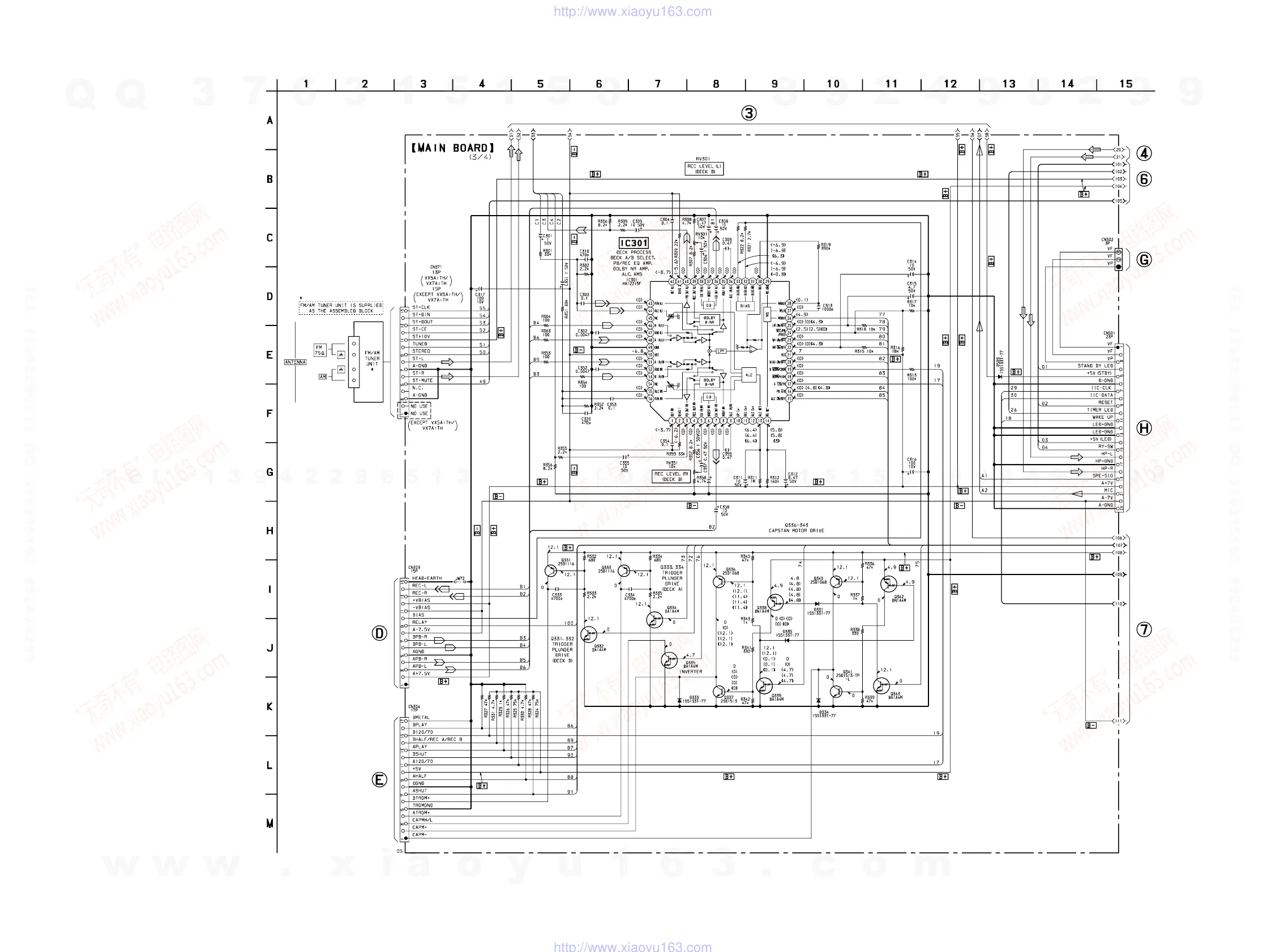
7-21. SCHEMATIC DIAGRAM – MAIN Board (3/4) – See page 75 for Waveforms.
Voltages are dc with respect to ground under no-signal
conditions.
no mark : TUNER (FM/AM)
( ) : CD PLAY
{ } : PLAYBACK (DECK A)
[ ] : PLAYBACK (DECK B)
〈〈 〉〉 : RECORD
(Page 52)
(Page 54)
(Page 58)
(Page 59)
(Page 63)
(Page 71)
(Page 68)
(Page 63)
w
w
w
.
x
i
a
o
y
u
1
6
3
.
c
o
m
Q
Q
3
7
6
3
1
5
1
5
0
9
9
2
8
9
4
2
9
8
T
E
L
1
3
9
4
2
2
9
6
5
1
3
9
9
2
8
9
4
2
9
8
0
5
1
5
1
3
6
7
3
Q
Q
TEL 13942296513 QQ 376315150 892498299
TEL 13942296513 QQ 376315150 892498299
http://www.xiaoyu163.com
http://www.xiaoyu163.com

Related product manuals