EasyManua.ls Logo

Sony PHA-1A - MAIN Section (3;4) (PHA-1 A)

Sony PHA-1A
42 pages
Print Icon
To Next Page IconTo Next Page
To Next Page IconTo Next Page
To Previous Page IconTo Previous Page
To Previous Page IconTo Previous Page
Loading...
PHA-1A/1AEU
PHA-1A/1AEU
1414
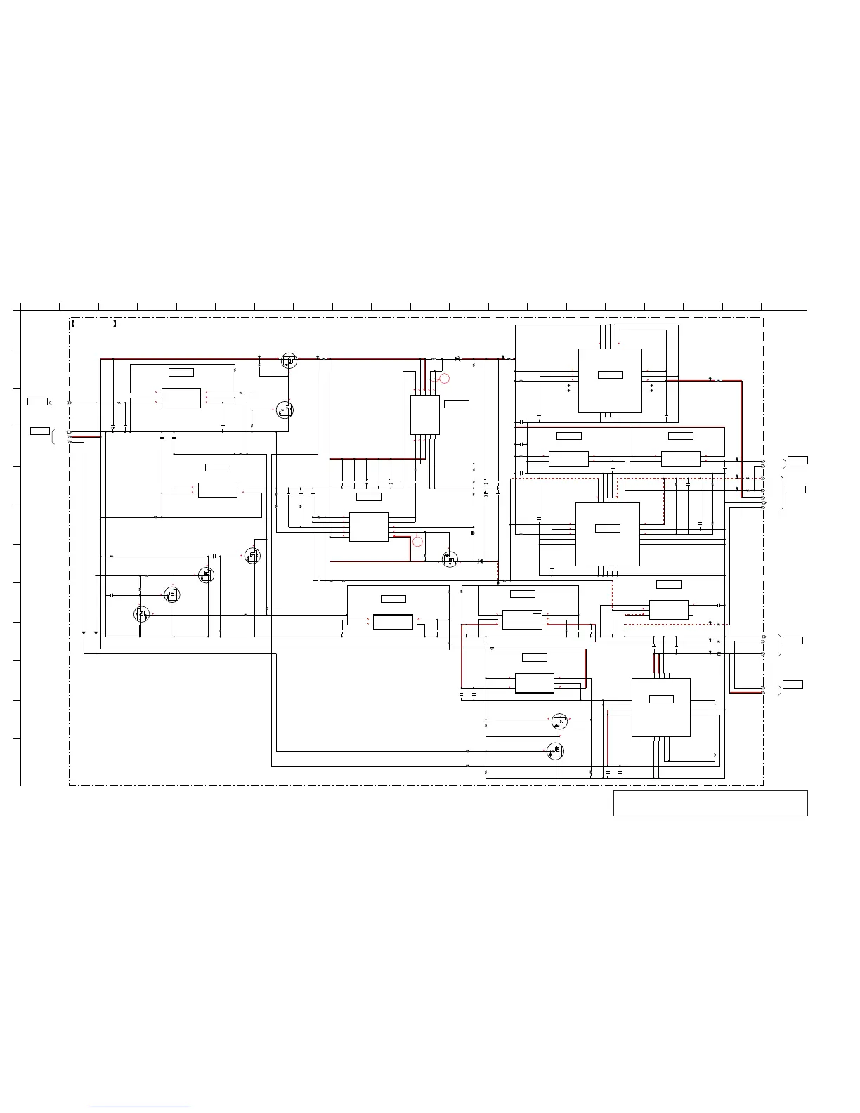
3-5. SCHEMATIC DIAGRAM - MAIN Section (3/4) (PHA-1A) -
• See page 10 for Waveforms. • See page 16 for IC Block Diagrams.
Note: The following parts on the MAIN board cannot replace with single.
When these parts are damaged, replace the complete mounted board.
IC500, IC501, IC502, IC503, IC505, IC506, IC507
3.2
4
2.9
4
0
0
3.9
3.9
3.4
0
0
3.3
3.3
3.4
4
0
0
4
3.4
3.3
4
0
1.2
4
1.2
1.2
2
3.4
2.8
4.9
4.9
4
4.9
4
3.5
-5.8
-4.9
5.85.8
5.8
4.9
5.8
-5.8
-1.1
5.8
0
2.8
4
4
4.9
0.3
4.9
4
4
4
0
-1.8
5.8
3.3
5.8
4.9
-4.9
-1.1
5
5
04
3.9
4
4
4
4
0.3
1.2
4
-5.8
-4.9
5.8
5
6
5
V_OUT
PWR_CTRL
VDDN50_VC
VDD33_VF
VDD50_VD
VDD50_VB
VDDN50_VE
VDD50_VG
PGND
JL111
RP601Z330A-E2-F
IC506
MODE
A1
GND_A2
A2
AVIN
A3
PVIN
A4
BULX_B4
B4
CE
C1
PG
D1
GND_D2
D2
VOUT_D3
D3
VOUT_D4
D4
GND_B2
B2
BULX_B3
B3
BP
B1
GND_C2
C2
BOLX_C3
C3
BOLX_C4
C4
TPS7A3301RGWR
IC503
OUT_1
1
NC_2
2
FB
3
NC_4
4
NC_5
5
NC_8
8
NC_9
9
NC_10
10
NC_11
11
NC_12
12
EN
13
NR/SS
14
IN_15
15
IN_16
16
NC_17
17
NC_18
18
NC_19
19
OUT_20
20
NC_6
6
GND
7
MM3411A50URE
IC504
CE
1
GND
2
VOUT
3
VDD
4
TPS61087DRCR
IC500
COMP
1
FB
2
EN
3
AGND
4
PGND
5
SW
6
SW
7
IN
8
FREQ
9
SS
10
NJM2827F3-05(TE1)
IC505
GND
1
VIN
2
VOUT
3
NC
4
CS
5
S
RU1C001UNTCL
Q502
MAX1846EUB+T
IC501
VL
1
FREQ
2
COMP
3
REF
4
FB
5
GND
6
PGND
7
CS
8
EXT
9
IN
10
TPS2553DBVR
IC509
IN
1
GND
2
EN
3
FAULT
4
ILIM
5
OUT
6
S
RU1C001UNTCL
Q508
RST_OUT
RP402N501E-TR-FE
IC507
LX
1
GND
2
CE
3
VIN
4
VOUT
5
TPS7A4700RGWR
IC502
OUT_1
1
NC_2
2
SENSE
3
6P4V2
4
6P4V1
5
1P6V
8
0P8V
9
0P4V
10
0P2V
11
0P1V
12
EN
13
NR
14
IN_15
15
IN_16
16
NC_17
17
NC_18
18
NC_19
19
OUT_20
20
3P2V
6
GND
7
S
RAF040P01TCL
Q503
S
RAF040P01TCL
Q501
S
RAF040P01TCL
Q509
PST8431UL
IC508
GND
1
VDD
2
CD
3
OUT
4
74LVC1G175GW-125
IC511
1
CLK
2
GND
3
D
4
Q
5
VCC
6
/CLR
S
LSK3541FS8T2L
Q510
S
LSK3541FS8T2L
Q511
S
LSK3541FS8T2L
Q512
S
LSK3541FS8T2L
Q513
MM3411A33URE
IC510
CE
1
GND
2
VOUT
3
VDD
4
VDD3_3_DAC
MM3411A33URE
IC512
CE
1
GND
2
VOUT
3
VDD
4
0
R580
1
C571
2.2
C572
100k
R505
1M
R571
10k
R568
1M
R569
0
R570
10V
100
C530
0.01
C573
0.01
C574
100k
R581
0.1
C502
16V 10V
10
C501
0.1
C500
0.1
C505
0.0012
C514
100
C504
18k
R512
68k
R513
33k
R510
1.2k
R51
1
1
C559
10V
100
C560
1W
R555
0.05
22k
R554
47k
R552
27k
R553
43k
R556
2.2k
R582
10k
R557
100k
R551
0.1
C556
0.1
C555
0.47
C553
220p
C554
68p
C558
16V
10
C551
0.1
C552
RSX101M-30FJTR
D513
0
R558
1
C561
22
C568
0.01
C542
1k
R524R525
330k
100k
R523
0.47
C516
0.47
C515
0.47
C580
0.47
C581
C520
10
0.047
C518
0.47
C517
22
C524
0.1
C565
10
C566
22
C523
30k
R561
FB101
22
C522
1
C521
100k
R567
100k
R562
10
C527
10
C525
0.1
C564
10
C526
470k
R564
470k
R563
1SS400SMGJT2R
D515
1SS400SMGJT2R
D514
10k
R566
10k
R576
220k
R573
100k
R574
0
R577
1M
R578
220k
R572
1
C576
0.001
C529
0.1
C575
2.2
C577
10k
R579
10k
R575
10
C569
100k
R502
CL110
CL109
10
C570
1
C541
0
R521
CL112
CL111
22
C567
JL113
JL102
JL121
JL114
JL107
JL108
CL113
JL106
JL105
RSX101M-30FJTR
D512
JL122
0
JC101
0
JC113
0
JC103
0
JC105
0
JC104
0
JC109
0
JC106
0
JC114
0
JC111
1uH
L503
PGND
PGND
VDD50_VD
VDD50_VG
VDD33_VF2.2uH
L504
3.3uH
L500
L551
15uH
IC503
IC504 IC512
IC502
IC505
-5V REGULATOR
IC509
OVER CURRENT PROTECT
IC506
+3.3V REGULATOR
IC507
DC/DC CONVERTER
IC501
IC500
DC/DC CONVERTER
IC508
RESET SIGNAL GENERATOR
IC510
SOFT START SWITCH
IC511
POWER CONTROL
MAIN BOARD (3/4)
CSP
(Chip Size Package)
MAIN
BOARD
>006S
(1/4)
MAIN
BOARD
>008S
(2/4)
MAIN
BOARD
>003S
(1/4)
MAIN
BOARD
>011S
(4/4)
Q508, 509
POWER CONTROL
-5V REGULATOR
+3.3V REGULATOR+5V REGULATOR
+5V REGULATOR
DC/DC CONVERTER
DC/DC CONVERTER
+3.3V REGULATOR
Q510 - 513
B+ SWITCH
Q501, 502
MAIN
BOARD
>007S
(2/4)
MAIN
BOARD
>010S
(4/4)
10 11 12 13 14 15
G
16
H
17
I
18
F
201
C
J
D
6
E
K
L
2
B
3
A
45 7 1989
(Page 15)
(Page 13)
(Page 15)
(Page 12)
(Page 13)
(Page 12)

Other manuals for Sony PHA-1A

Related product manuals