EasyManua.ls Logo

Sony PHA-1A - Page 34

Sony PHA-1A
42 pages
Print Icon
To Next Page IconTo Next Page
To Next Page IconTo Next Page
To Previous Page IconTo Previous Page
To Previous Page IconTo Previous Page
Loading...
PHA-1A/1AEU
PHA-1A/1AEU
44
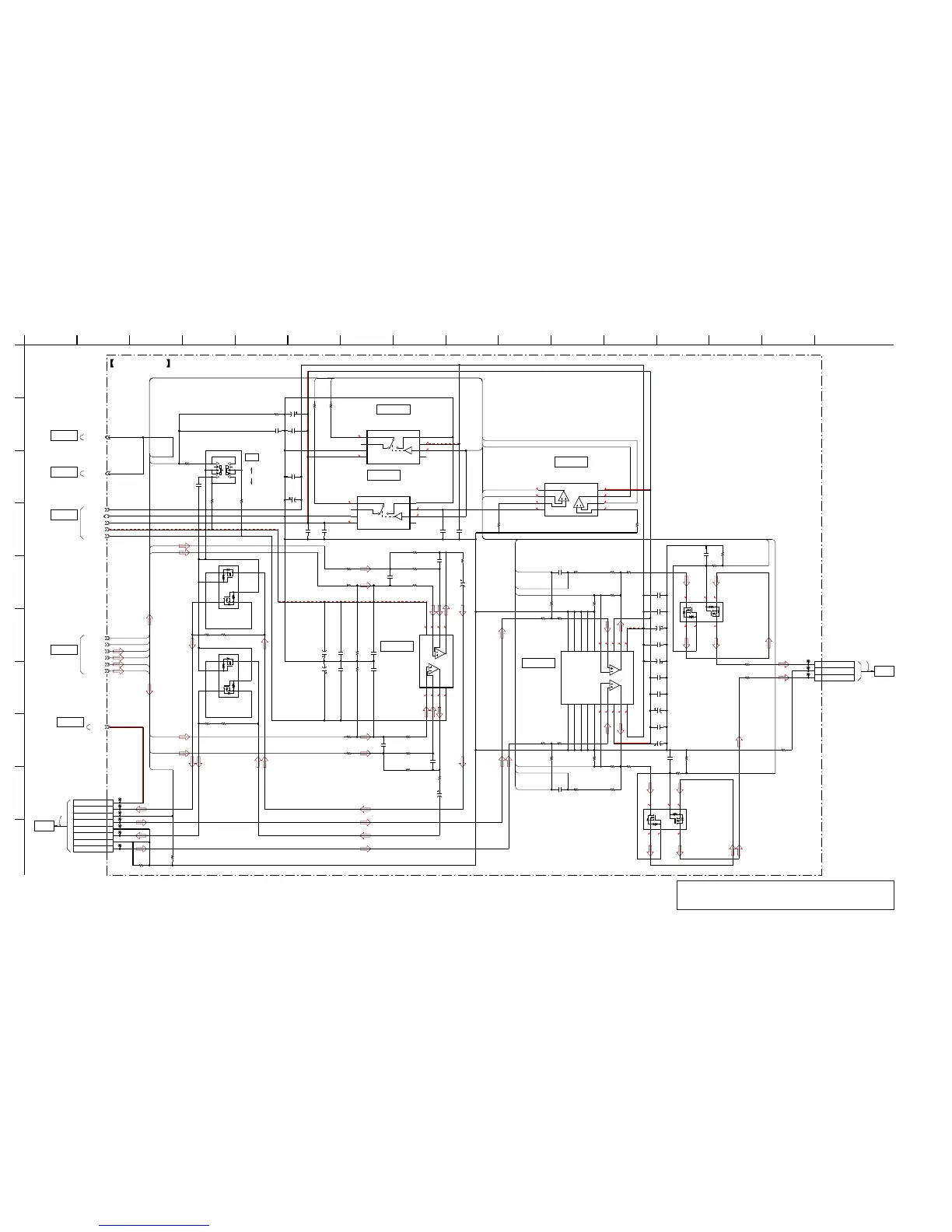
1-3. SCHEMATIC DIAGRAM - MAIN Section (2/4) (PHA-1AEU) -
Note: The following parts on the MAIN board cannot replace with single.
When these parts are damaged, replace the complete mounted board.
IC001, IC002, IC003, IC101, IC201, Q001, Q002, Q003, Q004
5
-4.9
0
0
-4.9
0
-4.9
0
-4.9
0
0
-4.9
0
5
5
0
0
0
5
0
-4.9
0
3.3
0
1.1
1.1
0
4.9
-4.9
1.1
1.1
0
0
0
5
0
-4.9
0
3.3
0
0
3.3
0
3.3
0
0
8P
CN001
1ROUT
2GND
3RIN
4GND
5LOUT
6PWR_CTRL
7LIN
8VOUT
DACOUT_LP
DACOUT_LN
DACOUT_RN
VDDN50_VE
VDDN50_VC
VDD50_VD
DACOUT_RP
VDD50_VB
V_OUT
PWR_CTRL
PGND
LMP7708MAX/NOPB
IC003
1
2
3
V–
45
6
7
V+
8
TS12A12511DCNR
IC201
1
2
GND
3
V+
4
NC_5
5
6
V–
7
8
TS12A12511DCNR
IC101
1
2
GND
3
V+
4
NC_5
5
6
V–
7
8
LME49860MAX/NOPB
IC001
1
2
3
V–
45
6
7
V+
8
TPA6120A2DWPR
IC002
LVCC–
1
2
LVCC+
3
4
5
NC_6
6
NC_7
7
NC_8
8
NC_9
9
NC_10
10
NC_11
11
NC_12
12
NC_13
13
NC_14
14
NC_15
15
16
17
RVCC+
18
19
RVCC–
20
3P
CN002
1LEFT
2GND
3RIGHT
DG
DSG
S
SSM6N58NU, RSONYF
Q001
DG
DSG
S
SSM6N58NU, RSONYF
Q002
HP_XMUTE1
HP_XMUTE2
6.3V
100
C14
6.3V
100
C8
0.1
C5
0.1
C11
1
C20
1
C19
0.01
C021
1M
R4 1k
R119
1k
R219
1k
R5
1
C17
1
C35
0.1
C3
0.1
C2
470p
C101
C201
470p
C103
470p
6.3V
100
C1
6.3V
100
C4
2.4k
R106
2.4k
R101
150
R103
150
R105
3k
R102
3k
R104
2.4k
R201
10V
22
C106
R107
100
JL031
JL032
JL035
JL036
JL033
JL034
JL030
22k
R111
1k
R112
0
R118
1
C104
0
R116
1k
R114
200k
R141
150k
R113
100k
R316
100
R207
22k
R211
1k
R212
0
R218
10V
22
C206
C202
0.0039
C203
470p
2.4k
R206
150
R203
3k
R204
3k
R202
150
R205
1
C204
150k
R213
1k
R214
200k
R241
0
R216
10
R217
0.1
C7
0.1
C13
16V
10
C10
16V
10
C16
100k
R321
22k
R320
1
C208
1
C207
22k
R319
100k
R318
10
R117
CL302
CL303
CL301
16V
10
C15
16V
10
C26
0.1
C27
0.1
C9
200k
R215
200k
R115
0.1
C052
0.1
C050
C102
0.0039
0
FB003
PWR_CTRL
DACOUT_LN
DACOUT_LP
DACOUT_RP
DACOUT_RN
DACOUT_LN
DACOUT_LP
DACOUT_RP
DACOUT_RN
HP_LIN
HP_XMUTE1
OPAMP_ROUT
OPAMP_LOUT
OPAMP_LIN
PWR_CTRL
HP_RIN
OPAMP_RIN
HP_LIN
OPAMP_LOUT
OPAMP_LIN
HP_XMUTE1
HP_XMUTE2
OPAMP_RIN
OPAMP_ROUT
HP_XMUTE2
HP_RIN
GAIN_SW
PWR_CTRL
GAIN_SW
HEADPHONE AMP
IC002
DC SERVO
IC003
AUDIO AMP
IC001
GAIN CONTROL
IC101
GAIN CONTROL
IC201
(2/4)MAIN BOARD
MUTING SWITCH
31
46
31
46
MUTING SWITCH
WR1
BOARD
VOLUME
HP JACK
WR2
BOARD
MAIN
BOARD
>004S
(1/4)
MAIN
BOARD
>007S
(3/4)
MAIN
BOARD
>008S
(3/4)
MAIN
BOARD
>002S
(1/4)
MAIN
BOARD
>009S
(4/4)
10 11 12 13 14 15
G
H
I
F
1
C
J
D
6
E
2
B
3
A
45 789 16
D
G
D
S
G
S
SSM6N58NU, RSONYF
Q004
SSM6N58NU, RSONYF
Q003
1
C209
2.2k
R329
100k
R332
10k
R328
2.2k
R331
10k
R330
GAIN CONTROL
1
34
6
D
G
D
S
G
S
1
34
6
-1-2
GAIN CONTROL
GAIN
S001
HIGH
LOW
NORMAL
0
R334
0
FB002
0
FB001
0
R335
(Page 6)
(Page 3)
(Page 5)
(Page 5)
(Page 3)

Other manuals for Sony PHA-1A

Related product manuals