EasyManua.ls Logo

Sony SDM-N50 - Schematic Diagrams of G (P1-P2) Board

Sony SDM-N50
63 pages
Print Icon
To Next Page IconTo Next Page
To Next Page IconTo Next Page
To Previous Page IconTo Previous Page
To Previous Page IconTo Previous Page
Loading...
4-43
4-44
1
A
B
C
D
E
F
G
H
2
12
13
11
10
98765
43
14
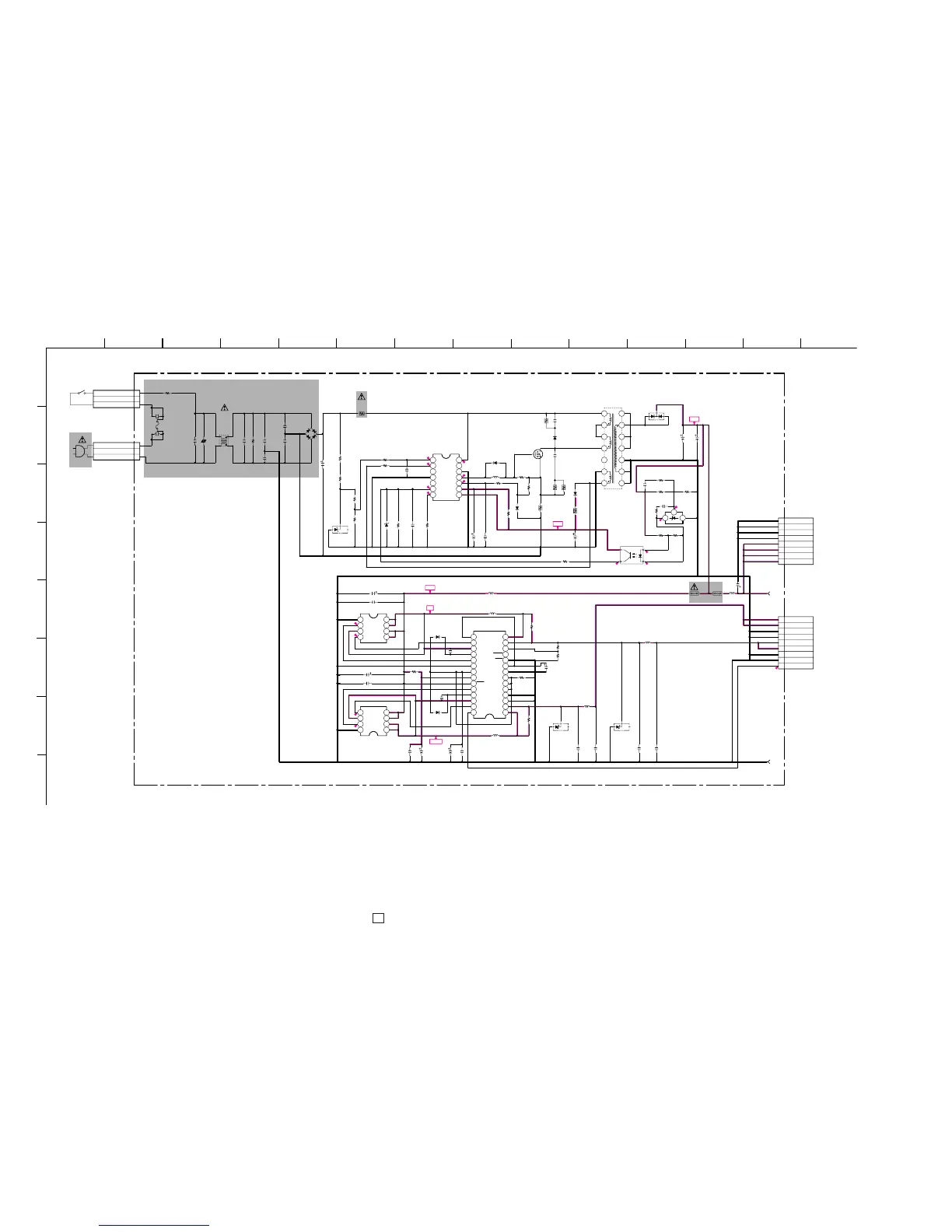
(5) Schematic Diagrams of G (P1-P2) Boards
Schematic diagram
-P1 board
ll
ll
l
G
3.1
1.4
2.8
2.5
0
2.6
132.5
12V
2.8
9.8
8.8
8.8
2.5
12V
12V
2.7
7.0
5V
4.9
3.3V
3.4
4.7
1234567
8 9 10 11 12 13 14
1
2
3
1
3
4
5
6
7 8
9
10
11
12
13
14
2
1
2
3
4
5
6
7
8
1234
5 6 7 8
1 2 3 4
5678
1 2 3 4 5 6 7 8 9 10 11 12 13 14
1516171819202122232425262728
2
4
3
1
1
2
3
4
5
6
7
8
9
CN703
PH701
T701
7.4MHz
C701 C727
R701
C719
R722
R714
R724
C710
C712
R721
R702
C703
C707
R711
R712
R719
C713
C735
R728
C722
R723
R726
C711
L703
R710
D702
C739
R718
C736
R704
R713
D707
R708
R709 C709
R727
R707
C717
C728
C721
C732
R735
R732
R703
R706
C708
R705
D710
R731
C706
C716
C726
C737
C738
C742
C743
L701
L707
C705
L702
C704
T702
C724
C730
C741
R717
L704
F701
FH701
FH702
R733
R730
PS701PS702
L705
L706
C723
C729
VDR701
R737
R736
R716
R725
C740
CN704
CN702
CN701
D703
Q701
D704
D705
D708
IC701
D701
IC704
IC707
D709
IC706
D706
IC702
D711 D712
0.1
250V
0.01
630V
220p
1kV
SL
680p
50V
B
47
50V
0.1
250V
4.7
35V
PC123FY2
680k
1/2W
1k
1/10W
15
1/2W
10
1/10W
1k
1/10W
2k
1/10W
1k
1/10W
3P
D10SC9M
0.1
1/2W
100k
3W
2.2M
1/2W
150
2W
150
2W
2.2M
1/2W
68k 1/10W 0.01 50V B
0.047
50V
B
100
50V
0.1 25V F
0.1
25V
F
1
50V
0.1 25V F
0.1
25V
F
0.1
25V
F
0.1
25V
F
RD10M-T1B2
47µH
0
330k
1/10W
150k
1/10W
220
1/10W
10
1/16W
1k
1/10W
0.022 50V B
3.9k 1/10W
MA2S728-TX
470
1/10W
3.9
10W
0.047
50V
B
180
450V
10k
1/10W
10k
1/10W
10k
1/10W
470 16V
470 16V
470
16V
470
16V
470
6.3V
470
16V
56µH
22µH
1500
16V
39µH
1500
16V
TFM96455
0.0047
250V
0.0047
250V
470
6.3V
0.22
2W
47µH
0.068
0.068
3.15A2A
47µH
47µH
1000p
250V
E
1000p
250V
E
27k
30k
470
1/10W
27k
1/10W
4.7
25V
3P
9P
8P
ERA34-10TP1
IRFIBC40G-LF38
SWITCHING
1SS119-25TG
D1NL20U-TR
UDZ-TE-17-4.7B
TEA1504/N2
PWM CONTROL
D2SB60A
MMDF6N03HDR2
CONTROL
MMDF6N03HDR2
CONTROL
MA2S728-TX
MAX1631EAI
+5V/+3.3V REG
11ES2-TB5
µPC1093J-1-T
MA3XD15001S0 MA3XD15001S0
GND
12V
31
2
2
1
21
3
21
3
1
2
3
21
3
2
3
14
4
3
1
2
2
14
3
1
2
3
1
2
3
AC L OUT
NC
AC L IN
AC L
NC
AC N
3.3V
3.3V
GND
GND
GND
OOB
DEM
NC
GND
NC
VCTRL
LREF
VIN
NC
GND
DRIVER
ISENSE
VAUX
DS
SEQ
DH5
LX5
BST5
DL5
PGND
VL
V+
SHDN
DL3
BST3
LX3
DH3
RUN/ON3 CSH3
CSL3
FB3
STEER
SECFB
SYNC
TIME/ON5
GND
REF
RESET
FB5
CSL5
CSH5
SKIP
CHIP
RN-CP
RN-CP
RN-CP
CHIP
CHIP
CHIP
CHIP
CHIP
CHIP
CHIP
CHIP
CHIP
CHIP
CHIP
CHIP
CHIP CHIP
CHIP
CHIP
CHIP
5V
S_A
G_A
S_B
G_B
D_A1
D_A2
D_B1
D_B2
G_B
S_B
G_A
S_A
D_B2
D_B1
D_A2
D_A1
DDON
GND
5V
+12V
+5V
+3.3V
GND
GND
GND
GND
12V
12V
12V
12V
AC IN
POWER
TO A BOARD
CN105
TO A BOARD
CN104
-P1
G
(POWER SUPPLY)
B-SS3514<J..>-G-P1(24)
1/2W
1/2W
1/16W
1/16W

Related product manuals