EasyManua.ls Logo

Sony STR-K890 - 4-9. Schematic Diagram - Digital Board (5;5)

Sony STR-K890
60 pages
Print Icon
To Next Page IconTo Next Page
To Next Page IconTo Next Page
To Previous Page IconTo Previous Page
To Previous Page IconTo Previous Page
Loading...
2222
STR-K890
STR-K890
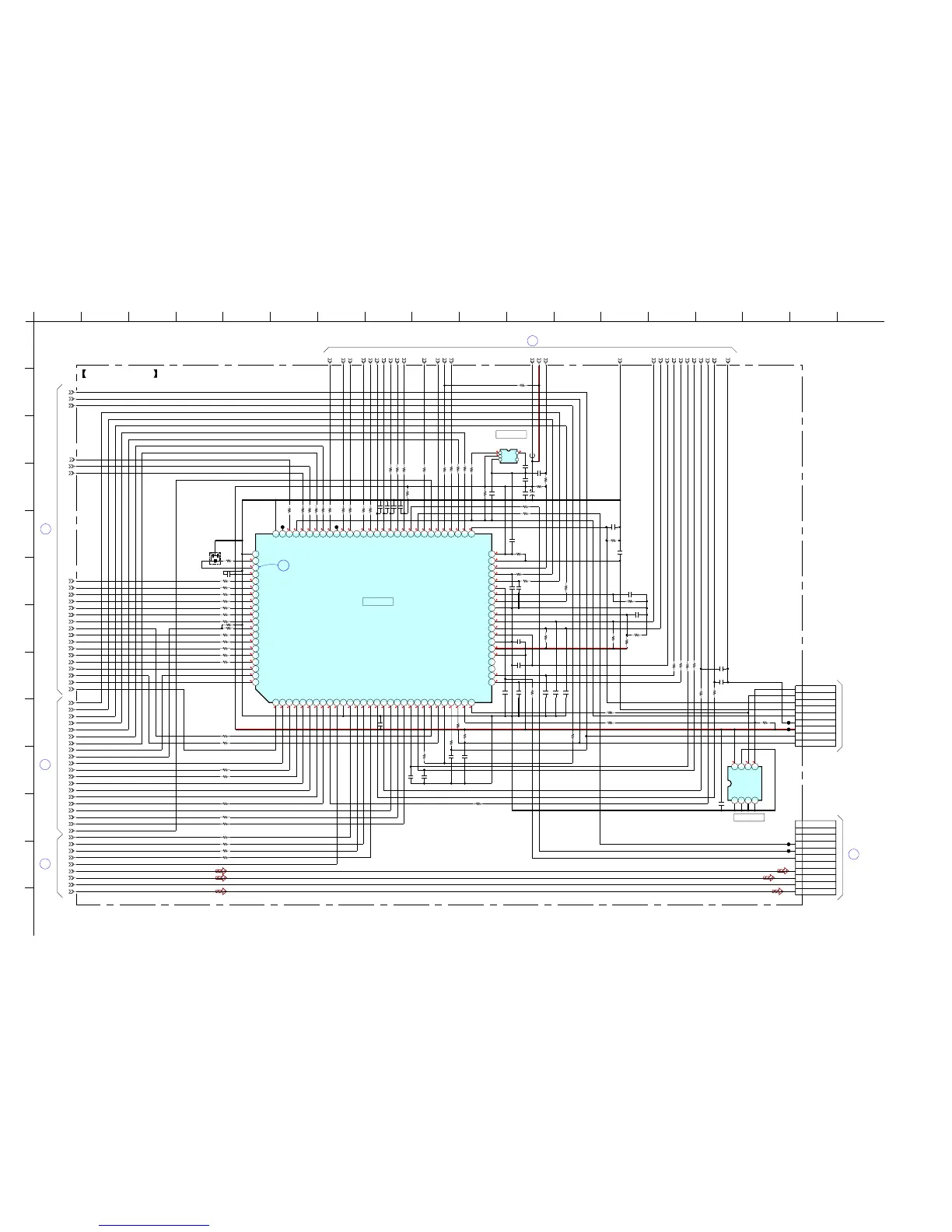
4-9. SCHEMATIC DIAGRAM – DIGITAL BOARD (5/5) –
• See page 13 for Waveform. • See page 41 for IC Pin Function Description.
for
FLASH
PROGRAMMING
G
MAIN
BOARD
(1/4)
CN500
(Page 24)
2
14
DIGITAL BOARD
(4/5)
(Page 21)
7
DIGITAL
BOARD
(1/5)
(Page 18)
12
DIGITAL
BOARD
(2/5)
(Page 19)
13
DIGITAL
BOARD
(3/5)
(Page 20)
1.3
3.3
0.1
3.3
1.1
3.3
0
0
0
0
0
0
3.3
0
3.3
0
0
0
0
3.2
3.2
3.3
3.3
0
0
3.3
3.3
3.3
3.3
3.2
3.3
3.3
3.3
0
3.3
3.3
3.3
0
0
3.2
2.9
3.3
0.1
3.3
0
0
0
0
0
3
3.1
3.3
3.3
0
3.3
3.3
3.3
0
0
0.1
3.3
0.2
0.2
3.2
3.2
3.3
3.3
3.3
0
3.3
0.1
3.3
0
3.3
0
3.3
0
0
0
0
0
0
0
3.3
3.3
3.3
3.3
3.3
3.3
3.3
3.3
0
3.3
3.3
3.3
0
No mark:FM
100R1151
100R1152
100R1153
100R1154
100R1143
100R1144
100R1121
100R1160
100R1161
100R1134
100R1135
100R1042
100R1140
100R1061
100R1062
100R1065
100R1066
100
R1067
100R1068
100R1010
100R1011
100R1012
100R1013
100R1014
100R1015
0
R1524
1kR1120
10kR1049
0.1
C1299
24MHz
X1101
100R1084
100R1122
100R1123
100R1125
100R1126
2.2kR1114
2.2kR1111
2.2kR1108
2.2kR1107
0.01
C1171
0.01
C1172
0.01
C1137
0.1
C1107
0.1
C1138
0.1
C1140
0.1
C1100
0.1
C1102
47
C1103
5
4
3
2
1
S-80929CNMC-G8ZT2G
IC1111
100R1127
100R1128
100R1124
100R1112
R1175
100
10kR1083
10k
R1190
10k
R1189
10k
R1039
220R1058
220R1059
22kR1201
2.2kR1035
0.1
C1604
0.1
C1605
0.1
C1620
0.1C1119
0.1C1142
0.1
C1139
0.1
C1122
0.1C1123
0.1
C1124
0.1
C1121
0.01C1131
0.01
C1132
0.01
C1144
0.01
C1145
220p
C1149
220p
C1495
220p
C1254
220p
C1255
100R1076
100R1077
100R1078
10kR1185
10kR1188
10k
R1096
22
R1947
100R1948
0R1156
0R1157
3.3k
R1159
3.3k
R1072
3.3kR1073
10k
R1191
10kR1192
1kR1117
1kR1118
100R1106
R1193
47k
10k
R1187
0uH
FB1101
8765
4321
BR24L16FJ-WE2
IC1131
A0
A1
A2
GND SDA
SCL
WCB
VCC
2.2kR1110
1
2
3
4
5
6
7
8
9
10
11
11P
CNS502
NC
NC
NC
VOL IC_CLK
VOL IC_DATA_LAT
VACS CTRL
SBR_OUT
SBL_OUT
SR_OUT
-7V
SL_OUT
123456789101112131415161718192021222324252627282930
31
32
33
34
35
36
37
38
39
40
41
42
43
44
45
46
47
48
49
50
515253545556575859606162636465666768697071727374757677787980
81
82
83
84
85
86
87
88
89
90
91
92
93
94
95
96
97
98
99
100
MB90F045PF-G-9034-SPE1
IC1101
DATA0
GP9
BST
HCS
HACN
XRST
PM
GP12
FL_LAT
PCM1609/1803_RST
VSS
PCM1609_ML
PCM1609_MC
PCM1609_MDI
PCM1609_MD0
FL_CLK
FL_DATA
HDOUT
HDIN
HCLK
TUNING_A
TUNING_B
VCC5
V_SW1
V_SW2
C LINK_DET
FLASH2/C LINK_RX(MICLO)
FLASH1/C LINK_TX(MOCLI)
SDA
SCL
ENC_A
ENC_B
NC
NC
AVCC
AVRH
AVSS
ADCC
A/D1
A/D2
VERSION
VSS
TUNER SD
MODEL
VAX CTRL
TUNER CLK
TUNER DATA
STOP
MD0
MD1
MD2
RDS_CLK
RDS_DATA
SIRCS
HP_DETECT
POWER_KEY
ADCC_INT
POWER_RY
VOL IC_CL
VO ICL_DA
PROTECTOR
HP_RY
FUSE_DETECT
VOL_ENCODER(B)
VOL_ENCODER(A)
FRONT_A_RY/DG51_FB
FRONT_B_RY/DG51_FA
DC-CONTROL
C/REAR/SB_RY
SW_RY
NC
BRIDGABLE_RY
D0/SD/ST
SLATCH
V_SW3
V_SW4
RSTX
COMP MUTE
XIA
XOA
VSS
X0
X1
VCC3
HDMI_S2
HDMI_S1
HDMI_OED
HDMI_PRE
HDMI_CTRL
COMP_S2
COMP_S1
BST_SEL
XMODE
CKSEL1
CLK
CE
DI
D0
ERROR
XSTATE
0R1164
R1194
2.2k
100
R1050
0.01C1129
CL034
CL035
CL036
CL037
10k
R1941
0.1
C1108
JL002
JL005
10k
R1635
10k
R1636
1
2
3
4
5
6
7
8
9
9P
CNS504
FLASH 1
FLASH 2
VDD
GND
RESET
MD0
MD2
SCL
SDA
C1067
220p
C1068
220p
0.1C1118
100R1041
HDMI_CTRL
HDMI_PRE
HDMI_OED
COMP_S1
COMP_S2
RDS_SIG
XMODE
V_SW3
TUNER_DO/SD/ST
RDS_DATA
RDS_CLK
TUNER_DI
TUNER_CLK
DSP_GP12
DSP_HCLK
DSP_HDIN
DSP_HDOUT
DSP_HCS
DIR_DO
PCM1609/1803_RST
DIR_XSTATE
TUNING_A
IP_B
HDMI_S2
DIR_CKSEL
DIR_CLK
DIR_CE
DIR_DI
HDMI_S1
V_SW1
V_SW2
V_SW4
IP_A
28
26
19
8
11
17
20
9
12
24
18
21
10
13
7
23
5
14
15
6
25
16
22
47
48
49
50
51
46
52
53
54
55
70
75
69
74
68
73
72
71
76
65
64
63
62
67
61
66
77
78
79
90 91 92 93 94 95 9697 9899 a1 a2 a3a4 a5a6 a7 a8 a9 b1 b2 b3 b4 b5 b6 b7b888 89
EEPROM
SYSTEM CONTROLLER
RESET
DIGITAL BOARD
(5/5)
IC1101
IC1111
IC1131
1 2 3 4 5 6 7 8 9 10 11 12 13 14 15 16 17 18
A
B
C
D
E
F
G
H
I
J
K
L
M

Related product manuals