EasyManua.ls Logo

Sony STR-K890 - 4-20. Schematic Diagram - DCAC Board, Video3 Board

Sony STR-K890
60 pages
Print Icon
To Next Page IconTo Next Page
To Next Page IconTo Next Page
To Previous Page IconTo Previous Page
To Previous Page IconTo Previous Page
Loading...
3333
STR-K890
STR-K890
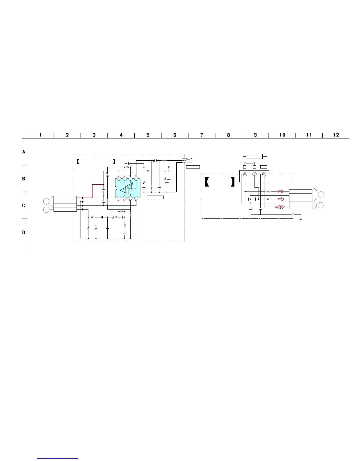
4-20. SCHEMATIC DIAGRAM – DCAC BOARD, VIDEO3 BOARD –
L
R
MAIN
BOARD
(4/4)
CN506
(Page 27)
DISPLAY
BOARD
CNP106
(Page 29)
P
Q
MAIN
BOARD
(1/4)
CNP503
(Page 24)
VIDEO
BOARD
CNP202
(Page 35)
0
7
00
00
-7
0
No mark:FM
J2000
1
2
3
CL2005
50V
1
C2013
50V
1
C2002
CL2006
CL2004
CL2007
50V
1
C2006
50V
0.47
C2014
1
3
4
5
CN2000
5P
+7V
+/-7V_GND
-7V
DCAC_OUT
1.2k
R2018
1k
R2000
1k
R2006
10k
R2001
10k
R2003
10k
R2010
33k
R2015
15k
R2016
10k
R2007
560k
R2008
1M
R2005
0.1
C2018
100p
C2001
33p
C2005
50V
0.022
C2011
0.022
C2012
0.033
C2003
0.033
C2010
56p
C2008
8765
4321
NJM4565M(TE2)
IC2000
2.2k
R2017
2.2k
R2019
1SS355TE-17
D2014
1SS355TE-17
D2013
DCAC BOARD
AUTO CAL MIC
IC2000
AMP
220p
C298
220p
C299
0.1
C293
0.1
C294
1k
R298
1k
R299
V
L
R
J298
1
2
3
4
5
5P
CN201
R-CH
GND
L-CH
GND
VIDEO
(CHASSIS)
CN202
RLVIDEO
AUDIO
VIDEO3 IN/
PORTABLE AV IN
VIDEO 3
BOARD

Related product manuals