EasyManua.ls Logo

Sony TRINITRON KD-27FS170 - VD Board Schematic Diagram; (Kd-32 Fs170;36 Fs170 Only)

Sony TRINITRON KD-27FS170
119 pages
Print Icon
To Next Page IconTo Next Page
To Next Page IconTo Next Page
To Previous Page IconTo Previous Page
To Previous Page IconTo Previous Page
Loading...
KD-27FS170/32FS170/36FS170
KD-27FS170/32FS170/36FS170
96
1 | 2 | 3 | 4 | 5 | 6 | 7
A
B
C
D
E
F
G
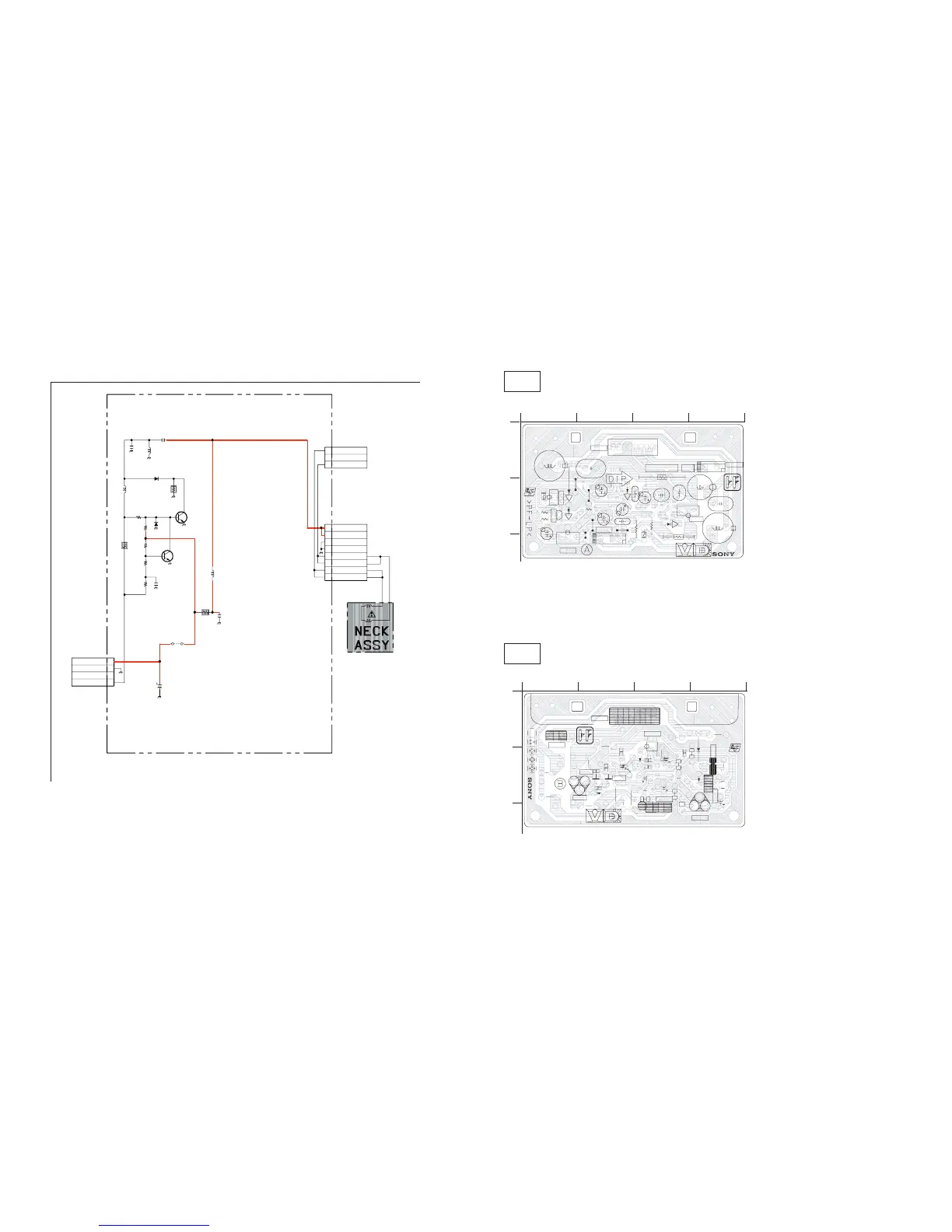
VD BOARD SCHEMATIC DIAGRAM
1
2
3
4
5
6
7
8
1
2
3
4
1
2
3
C800
C801
C802
C807
C814
CN801
D800
D801
L800
L803
L804
Q800
Q801
R800
R802
R803
R806
R807
R818
JW801
R804
R805
CN800
CN802
47
0.1
0.015
0.47
0.056
8P
RGP10GPKG23
1SS119-25TD
10mmH
3.3mmH
15mmH
KTC3199GR-TP
2SC2958-L
100
10k
10k
2.2k
1.8k
330
5MM
2.7k
100k
4P
3P
VD BOARD
VM
VM
QP-
QP-
QP+
QP+
E
E
15V
GND
NC
FBP
9-965-996-01<BA6>VD
VM
NC
E
VELOCITY MODULATION
TO A BOARD
CN502
CN902
TO CV BOARD
TO NECK ASSY
COMPONENT SIDE
[VELOCITY MODULATION]
[VELOCITY MODULATION]
VD
CONDUCTOR SIDE
VD
(KD-32FS170/36FS170 ONLY)
C800
C
8
0
1
C
8
0
2
C805
C807
C808
C
8
0
9
C810
C
8
1
1
C812
C
8
1
4
D800
D801
D
8
0
2
D803
JW801
L
8
0
0
L
8
0
3
L
8
0
4
R800
R802
R803
R
8
0
6
R807
R
8
0
8
R
8
1
8
JW806
JW805
JW803
J
W
8
0
2
I
C
8
0
0
C
N
8
0
2
C
N
8
0
1
R
8
0
5
R
8
0
4
C
N
8
0
0
Q801
Q800
Q
8
0
2
1
8
1
3
I
O
EB
E
B
B
E
QP-
QP-
QP+
QP+
E
E
VM
VM
FBP
NC
GND
15V
NC
E
(
T
O
N
E
C
K
A
S
S
Y
)
VM
1
4
1
-
8
6
9
-
9
0
1
-
1
1
1
-
7
2
7
-
2
7
5
-
1
1
A
-
1
1
7
1
-
1
1
6
1
A
B
234
C
8
0
0
C
8
0
1
C
8
0
2
C
8
0
5
C
8
0
7
C
8
0
8
C
8
0
9
C
8
1
0
C
8
1
1
C
8
1
2
C
8
1
4
D
8
0
0
D
8
0
1
D
8
0
2
D
8
0
3
L
8
0
0
L
8
0
3
L
8
0
4
R
8
0
0
R
8
0
2
R
8
0
3
R
8
0
6
R
8
0
7
R
8
0
8
R
8
1
8
R
8
1
6
R
8
1
7
R
8
1
5
R
8
1
4
R
8
1
2
R
8
1
3
R
8
1
1
R
8
0
9
R
8
1
0
C
N
8
0
1
C
N
8
0
2
I
C
8
0
0
I
C
8
0
1
R
8
0
5
R
8
0
4
C
N
8
0
0
Q
8
0
1
Q
8
0
0
Q
8
0
2
Q
8
0
3
Q
8
0
4
1
8
1
3
I
O
E
B
E
B
B
E
V
M
E
E
V
M
Q
P
+
Q
P
+
Q
P
-
Q
P
-
V
M
N
C
E
1
5
V
G
N
D
N
C
F
B
P
1
4
1
-
8
6
9
-
9
0
1
-
1
1
1
-
7
2
7
-
2
7
5
-
1
1
J
L
1
1
A
B
234

Table of Contents

Related product manuals