EasyManua.ls Logo

Sony VPL-EX175 - 5 Block Diagrams; Overall

Sony VPL-EX175
88 pages
Print Icon
To Next Page IconTo Next Page
To Next Page IconTo Next Page
To Previous Page IconTo Previous Page
To Previous Page IconTo Previous Page
Loading...
5-1
VPL-EX100
5-1
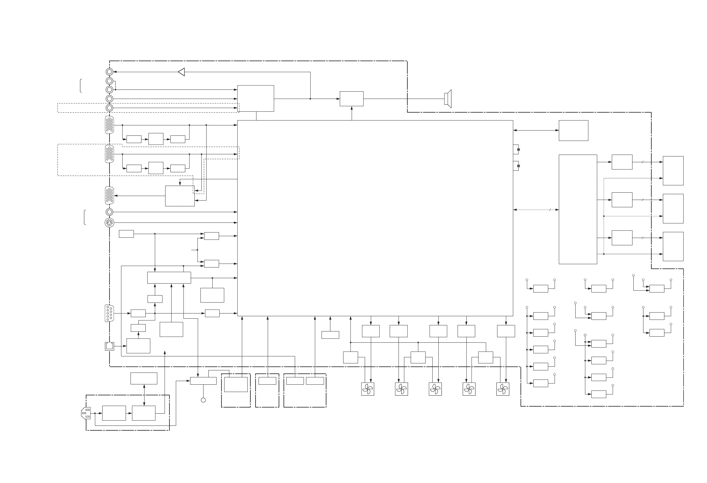
Section 5
Block Diagrams
OverallOverall
Overall
G
U
AC IN
OUTPUT
INPUT A AUDIO
INPUT B AUDIO
EXCLUDING VPL-EX100
EXCLUDING VPL-EX100
INPUT A
RGB/Y P
BPR
IC104
VAL AMP
AU_V_L,AU_V_R
ADC_A,DDC_SEL0,WP_DDC
ADC_B,DDC_SEL1,WP_DDC
MON_OUT_EN,
ACT_SEL1
OUT_R/G/B,OUT_H_V
VIDEO
S VIDEO
S VIDEO IN/VIDEO IN
CVBS
S-Y,S-C
I
2
C_HP
ROBSTER
UART0
TILT
LAMP CTRL
RUBY_
UART1
SIRCS_NF
KEY0
AUDIO
PROCESSOR
IC101
VIDEO AMP
&
SEL
IC301
SW
Q200,Q202
SW
Q208,Q209
DDC
IC200
INPUT B
RGB
OUTPUT
MONITOR
RS-232C
LAN
SW
Q201,Q203
KEY
S400-S408
SW
Q210,Q211
DDC
IC201
S VIDEO IN/VIDEO IN
SW
IC601
POWER_ON
SW
IC600
SUB CPU
IC602
ANGLE
DETECT
ANEM
(NW)
TB400
MAIN NVM
EEPROM
IC702
SW
IC1802
SW
IC1803
S30
SW
SW
IC1804
I
2
C_100K
POWER
MODULE
IC500
VOLTAGE
CON
DC.
LAMP
SUB17.5V,
SUB6.5V
T500
THERMAL
FUSE
TH1,TH2
BALLAST
LAMP
COVER
TL NFTA
TH20
TEMP
MAIN
IC10
IC1707
IC1601 IC1600
SIRCS
TH10
TEMP
LAMP_COVER
LAMP_TEMP
USB_BUS,EXT_TEMP
TH700
TEMP
PANEL
_TEMP
FAN
DRIVER
FAN E
FAN
PORT
SPEAKER
IC1705
FAN
DRIVER
IC1706
FAN
DRIVER
FAN D
FAN
PORT
FAN C
(FOR EXHAUST
OUTER SIDE)
(FOR EXHAUST
INNER SIDE)
(FOR
LAMP DUCT)
IC1602
IC1703
FAN
DRIVER
IC1704
FAN
DRIVER
FAN B
(FOR INTAKE)
FAN
PORT
FAN A
(FOR INTAKE)
PANEL
DRIVER
PANEL
R
3D GAMMA & TG
(DSD2)
LU/WB/UF/TG
IC1000 IC1300
13
TG,TG_R
PANEL
DRIVER
PANEL
G
IC1400
13
TG,TG_G
PANEL
DRIVER
PANEL
B
IC1500
13
TG,TG_B
33
DB[0]-[9],DG[0]-[9],
DR[0]-[9],PW_DHS,
PW_DVS,
PW_DCLKOUT
X1000
48MHz
X900
27MHz
128M BIT
FLASH
MEMORY
IC703IC700
REG
IC503
17.5V A9V
REG
IC504
SUB6.5V ECO3.3V
REG
IC502
A5V
D/D CON
IC801
SUB1.87V
D/D CON
IC808
SUB3.3V
D/D CON
IC1202
3.3V_G
D/D CON
IC503
A5V A-5V
REG
IC1303
3.3V_G 15.5V
SUB17.5V
FET
Q700
SUB5V ADC3.3V
ECO3.3V
SUB2.5V
REG
IC1204
3.3V_G 2.4V_G
REG
IC1205
1.8V_G
REG
IC805
SUB3.3V SUBA1.8V
REG
IC809
SUBA2V
REG
IC802
SUB2.5V
REG
IC807
SUBA3.3V
1W AUDIO
AMP
VIDEO PROCESSOR
MAIN CPU & SCALER & A/D CONVERTER
IC102
AUDIO
L (MONO)
R

Table of Contents

Other manuals for Sony VPL-EX175

Related product manuals