EasyManua.ls Logo

Spirax Sarco Colima Visco - Typical Vessel Installations

Spirax Sarco Colima Visco
8 pages
Print Icon
To Next Page IconTo Next Page
To Next Page IconTo Next Page
To Previous Page IconTo Previous Page
To Previous Page IconTo Previous Page
Loading...
Colima Visco and Viscorol Magnetic level indicators
Page 6 of 8
TI-P329-01 CH Issue 1
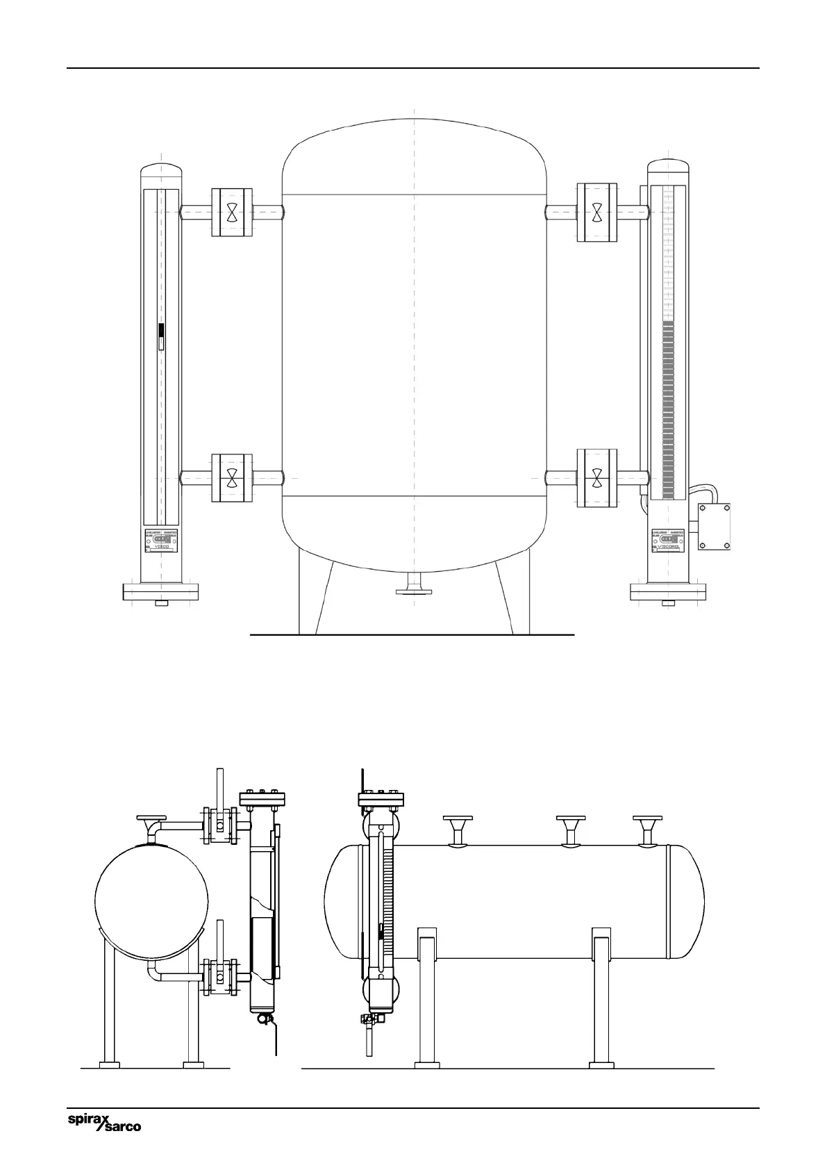
Typical vessel installations

Related product manuals