EasyManua.ls Logo

Spirax Sarco PP5 Series - Page 9

Spirax Sarco PP5 Series
20 pages
Print Icon
To Next Page IconTo Next Page
To Next Page IconTo Next Page
To Previous Page IconTo Previous Page
To Previous Page IconTo Previous Page
Loading...
9
3.568.5275.906
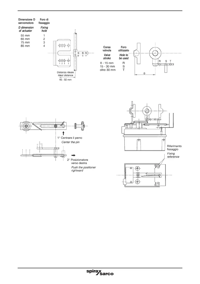
Fig. 5 -
Selezione della corsa
Stroke selection
Fig. 6 Fig. 7
6) Regolare la posizione dello strumento facendo
scorrere verticalmente la sta󰀨a di ssaggio sul
castello in modo che la leva di accoppiamento
tra posizionatore e valvola si venga a trovare in
posizione orizzontale al 50% della corsa valvola.
7) Posizionare la piastrina di protezione (D) come
illustrato in Fig. 7 utilizzando i fori più adatti alla
larghezza del castello della valvola.
Evitare che lo strumento sia soggetto a vibrazioni
e si trovi esposto a vapori corrosivi, umidità e
temperature dell’ambiente inferiori o superiori ai
limiti consentiti (-20 ÷ +80°C).
6) Adjust, if required, the position of the
positioner sliding the xing plate up or down
the yoke to ensure the coupling lever is in
a horizontal position at 50% of valve stem
stroke.
7) Fit the protection plate (D) as indicated by the
Fig. 7, using the proper holes according to the
size of the control valve yoke.
Avoid that the instrument is subject to vibrations
and is exposed to corrosive vapours, humidity
and ambient temperature lower or higher than
allowed limits (-20 to + 80 °C).

Related product manuals