EasyManua.ls Logo

Stulz ASR 682 A2 - 12.1 Steam Humidifier

Stulz ASR 682 A2
92 pages
Print Icon
To Next Page IconTo Next Page
To Next Page IconTo Next Page
To Previous Page IconTo Previous Page
To Previous Page IconTo Previous Page
Loading...
1
/08.2014/humidifierEN
The steam humidifier is an optional extra for your A/C unit. It is installed complete and integrated within the function
and method of operation of the A/C unit. Details concerning the connection assignment for the power supply can be
found in the electrical diagrams in the appendix.
12.1.1 Description
The steam humidifier OEM2 is a pressureless steam generator that utilizes an electrode heating and is designed for
air humidification via a steam distributor (steam distribution pipe, steam nozzle).
12.1 Steam humidifier
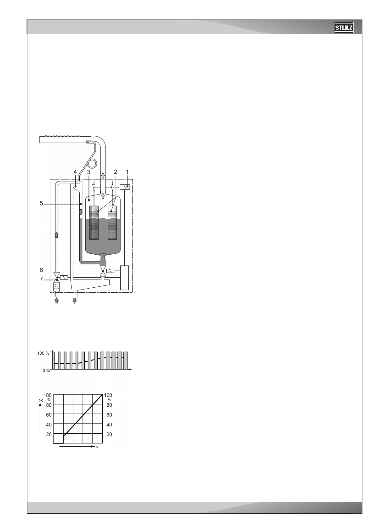
Steam generation
Any time steam is requested, the electrodes (2) are supplied with voltage
via main contactor (1). Simultaneously, the inlet valve (7) opens and water
enters the steam cylinder (3) from the bottom via water cup (4) and supply
line (5). As soon as the electrodes come in contact with the water, current
begins to flow between the electrodes, eventually heating and evaporating
the water. The more the electrode surface is exposed to water, the higher is
the current consumption and thus the steam capacity.
Upon reaching the requested steam capacity, the inlet valve closes. If the
steam generation decreases below a certain percentage of the required
capacity, due to lowering of the water level (e.g. because of the evaporation
process or drainage), the inlet valve opens until the required capacity is
available again.
If the required steam capacity is lower than the actual output, the inlet valve
is closed until the desired capacity is achieved by lowering of the water level
(evaporation process).
Level monitoring
A sensor provided in the steam cylinder cover detects when the water level
gets too high. The moment the sensor comes in contact with water, the inlet
valve closes.
Drainage
As a result of the evaporation process, the conductivity of the water increases
due to an escalating mineral concentration. Eventually, an inadmissibly high
current consumption would take place if this concentration process were
permitted to continue. To prevent this concentration from reaching a value,
unsuitably high for the operation, a certain amount of water is periodically
drained from the cylinder and replaced by fresh water.
During the drainage process, the drain valve (6) is opened. Following a pre-
determined time of drainage, the drain valve is closed again.
Control
With the ECCM/S control unit either On/Off control or proportional control
can be employed for steam production.
Below a minimum controllable steam output, proportional control will work
in two-point operation (on/off control).
On/Off control
Proportional control
X = steam capacity in %
Y = Output signal controller

Table of Contents

Related product manuals