EasyManua.ls Logo

Stuv 21 - Page 10

Stuv 21
40 pages
Print Icon
To Next Page IconTo Next Page
To Next Page IconTo Next Page
To Previous Page IconTo Previous Page
To Previous Page IconTo Previous Page
Loading...
10
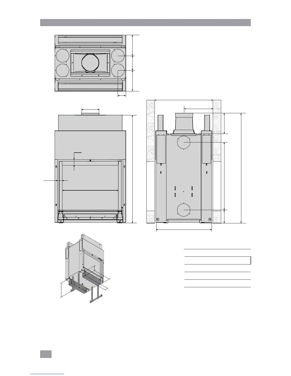
SN 132150- …
250
S
S
R
T
ø L*
U
M
152
117
D
N
57
A
72
68
AB
AA
117
AC
40
Z
430
V
118
Max 450
AA AB AC
Stûv 21/75 690 345 670
Stûv 21/85 690 335 670
Stûv 21/95 690 335 670
Stûv 21 - installation [en] - 04-2013
Dimensions (continuation)
Double-face fireplaces

Other manuals for Stuv 21

Related product manuals