EasyManua.ls Logo

Sullair SUPERVISOR CONTROLLER - Page 34

Sullair SUPERVISOR CONTROLLER
52 pages
Print Icon
To Next Page IconTo Next Page
To Next Page IconTo Next Page
To Previous Page IconTo Previous Page
To Previous Page IconTo Previous Page
Loading...
SUPERVISOR CONTROLLER™ USER MANUAL SECTION 5
32
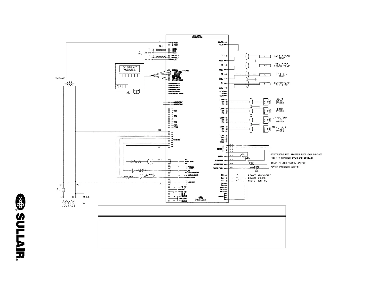
Figure 5-3: WIRING DIAGRAM—SUPERVISOR CONTROL After April, 2009
02250180-024 R00
NOTES
1. DASHED LINES INDICATE TYPICAL FIELD CONNECTIONS THAT VARY DEPENDING ON COMPRESSOR
BEING RETROFITTED AND IS FIELD WIRED. FACTORY WIRING IS SOLID.
2. DISPLAY E-STOP CONNECTION IS WIRED TO TERMINAL BLOCK INSIDE REAR COVER OF DISPLAY.
3. CHASSIS GROUND WIRE TO BE AS SHORT AS POSSIBLE
4. BELDEN TYPE 9842 4 COND. 2 TWISTED PAIR W/SHIELD OR EQUIVALENT. TO MATCHING TERMINALS
ON NEXT COMPRESSOR. REFER TO SUPERVISOR SEQUENCING PROTOCOL MANUAL.

Other manuals for Sullair SUPERVISOR CONTROLLER

Related product manuals