EasyManua.ls Logo

Sumitomo FA-20L - PRINCIPLES of OPERATION

Sumitomo FA-20L
56 pages
Print Icon
To Next Page IconTo Next Page
To Next Page IconTo Next Page
To Previous Page IconTo Previous Page
To Previous Page IconTo Previous Page
Loading...
PRINCIPLES of OPERATION
9
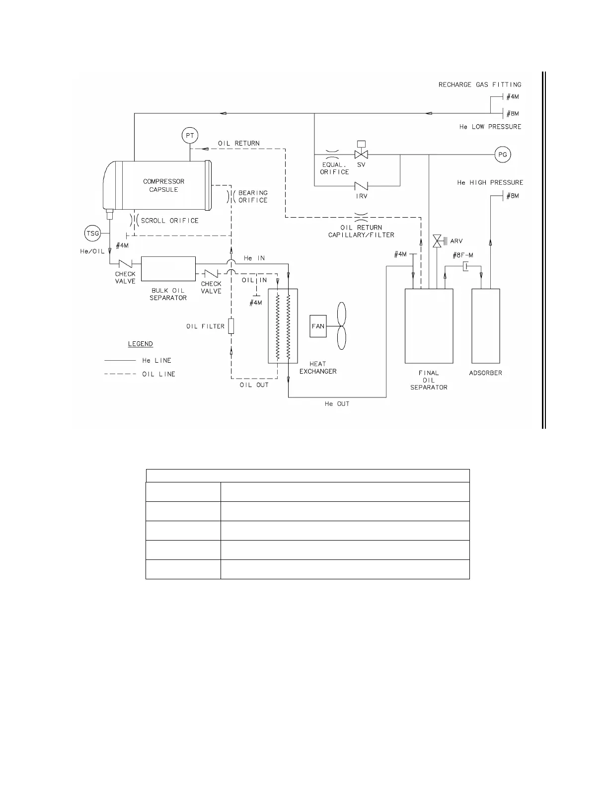
Figure 1 Compressor Flow Diagram
Key
TSG Helium discharge temperature switch
ARV Atmospheric relief valve
IRV Internal relief valve
SV Solenoid valve
PG Pressure gauge
The compressor continuously draws low-pressure helium from the system return line. It
compresses, cools and cleans the gas, then delivers it through the system gas supply line to the
cold head. See Figure 1.

Related product manuals