EasyManua.ls Logo

Sumitomo FA-20L - Compressor Location

Sumitomo FA-20L
56 pages
Print Icon
To Next Page IconTo Next Page
To Next Page IconTo Next Page
To Previous Page IconTo Previous Page
To Previous Page IconTo Previous Page
Loading...
Installation
24
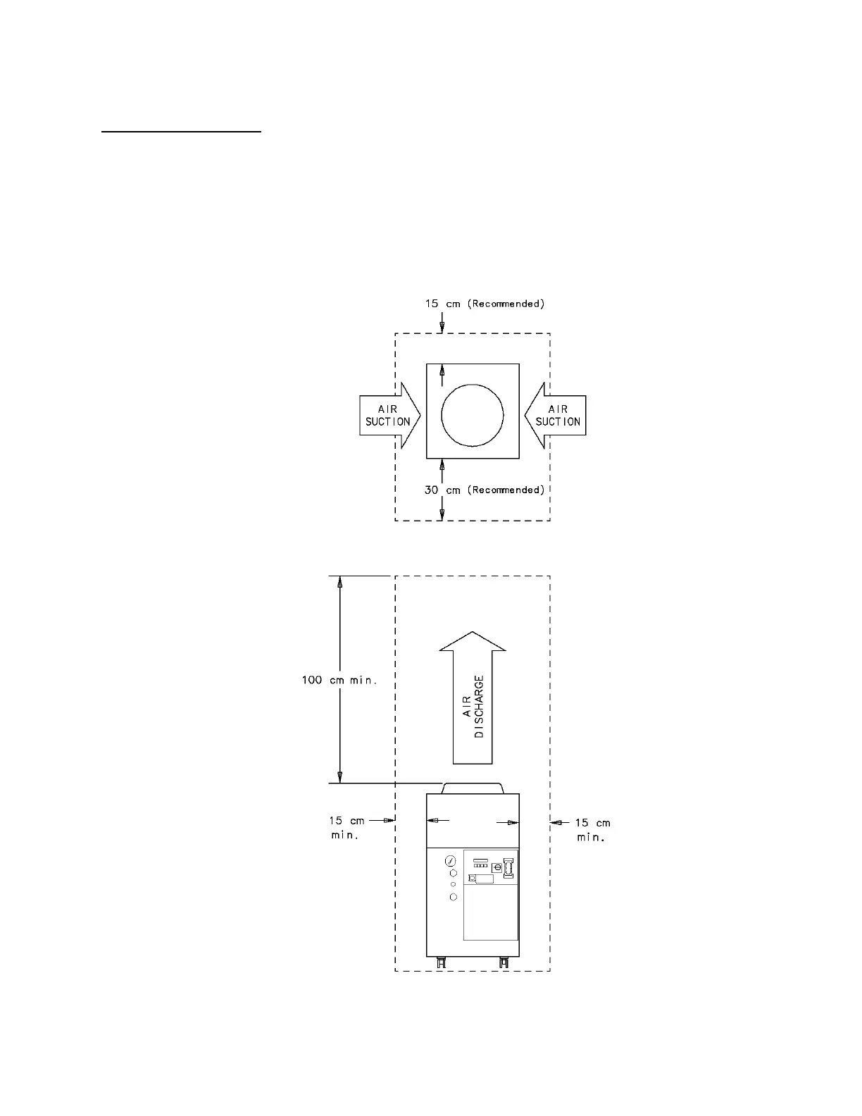
Compressor Location
Place the compressor in a location that is protected from the elements and where the ambient
temperature will always be within the range of 4° C to 40° C (40° F to 104° F).
The compressor must be installed base down, within 5 degrees of horizontal.
The compressor must be installed in a location allowing proper airflow. Proper airflow prevents
warm discharge air from entering the heat exchanger. Minimum spacing requirements are
shown in Figure 4.
Figure 4 Required Space for Compressor Unit

Related product manuals