EasyManua.ls Logo

Sunfar E500-2S0004(B) - Peripheral Element Wiring

Sunfar E500-2S0004(B)
103 pages
Print Icon
To Next Page IconTo Next Page
To Next Page IconTo Next Page
To Previous Page IconTo Previous Page
To Previous Page IconTo Previous Page
Loading...
10 Function Parameter Table
E500 Series Universal Low-Power Inverter
3.2 Wiring of peripheral elements
Power supply
The inverter shall be provided with power in accordance with specification
of input power supply designated by this operating manual
Air switch
1) When the frequency inverter is maintained or not in use for a long time,
the air switch will separate the frequency inverter from the power supply;
2) When the input side of the frequency inverter has failures like short
circuit, the air switch can provide protection.
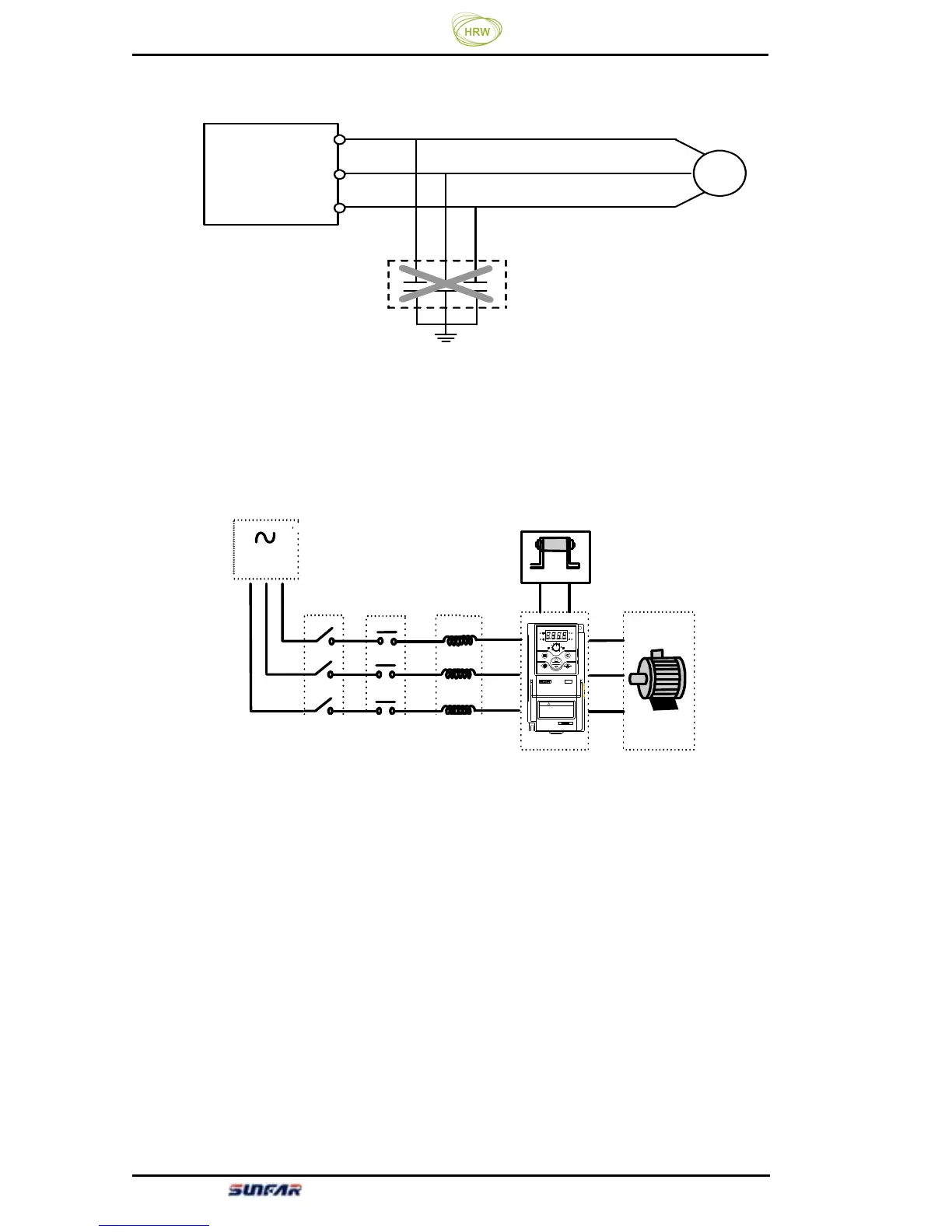
Figure 3-2 Inverter Wiring
变频器
U
V
W
M
电动机
阻容吸收装置
R/L1
S/L2
T
U
V
W
AC 电抗
E550
AC 电源
PP PB
空气开关 接触
WAR NING
1.Refer to t he in struction manual before installation
3.D o not r emo ve a n y co ve r w hil e ap pl yi ng pow er
and at least 10min. af ter disconnecting power.
4.S e cur el y gr ou n d(e ar th ) th e equi p me nt.
2.Do not connect AC power to output terminals UVW.
and operation.
!
E550
制动电
Figure 3-1 Forbidding connecting a RC absorber at the output terminal
RC absorber
Motor
Inverter
Braking resistor
Air switch Contactor AC reactor
Motor
AC Powe
r
supply
E500
HRW Limited
admin@hrw.hk
www.hrw.hk

Related product manuals