EasyManua.ls Logo

Supero X8DAi - CNF1;CNF2 Enable

Supero X8DAi
97 pages
Print Icon
To Next Page IconTo Next Page
To Next Page IconTo Next Page
To Previous Page IconTo Previous Page
To Previous Page IconTo Previous Page
Loading...
Chapter 2: Installation
2-29
JWOL1
JC2
JSM1
JSM2
J5
JPS1
JPI1
JI2C2
JI2C1
JPL2
1
JI2C3
JI2C4
JPL1
JF1
LE1
LES1
LES2
JPI2C
JD1
SP1
JL1
JPS2
KB/Mouse
JPW3
JPW1
JPW2
Fan8/CPU1 Fan
Fan6
Fan5
Fan2
Fan4
Fan3
Fan7/CPU2
Fan1
Slot5 PCI 33MH
Slot4 PCI 33MH
Slot3 PCI-E X16
P2 DIMM3A
USB
0/1
COM1
LAN1
AUDIO
CPU2
JBT1
Slot2 PCI-E X4
I-SATA0
I-SATA1
I-SATA4
I-SATA5
JWD1
Slot1 PCI 33MH
T-SGPIO2
Slot0 SIMLC
Floppy
USB6/7
USB4/5
USB8
USB
2/3
COM2
LAN
CTRL
LAN
CTRL
CD1
Slot6 PCI-E x16
SPI BIOS
I-Button
I-SATA3
I-SATA2
JOH1
X8DA3/i
Battery
SAS 0~3
SAS 4~7
CPU1
82573V
82573L
Intel
ICH10R
South
Bridge
SAS CTRL
1068E
LAN2
Intel 5520
P2 DIMM3B
P2 DIMM2A
P2 DIMM2B
P2 DIMM1A
P2 DIMM1B
P1 DIMM3A
P1 DIMM3B
P1 DIMM2A
P1 DIMM2B
P1 DIMM1A
P1 DIMM1B
IOH-36D
S I/O
T-SGPIO1
1394
CTRL
JFDD1
Rev. 1.3
CNF1
CNF2
A
A. CNF1/2 Enable
CNF1/CNF2 Enable
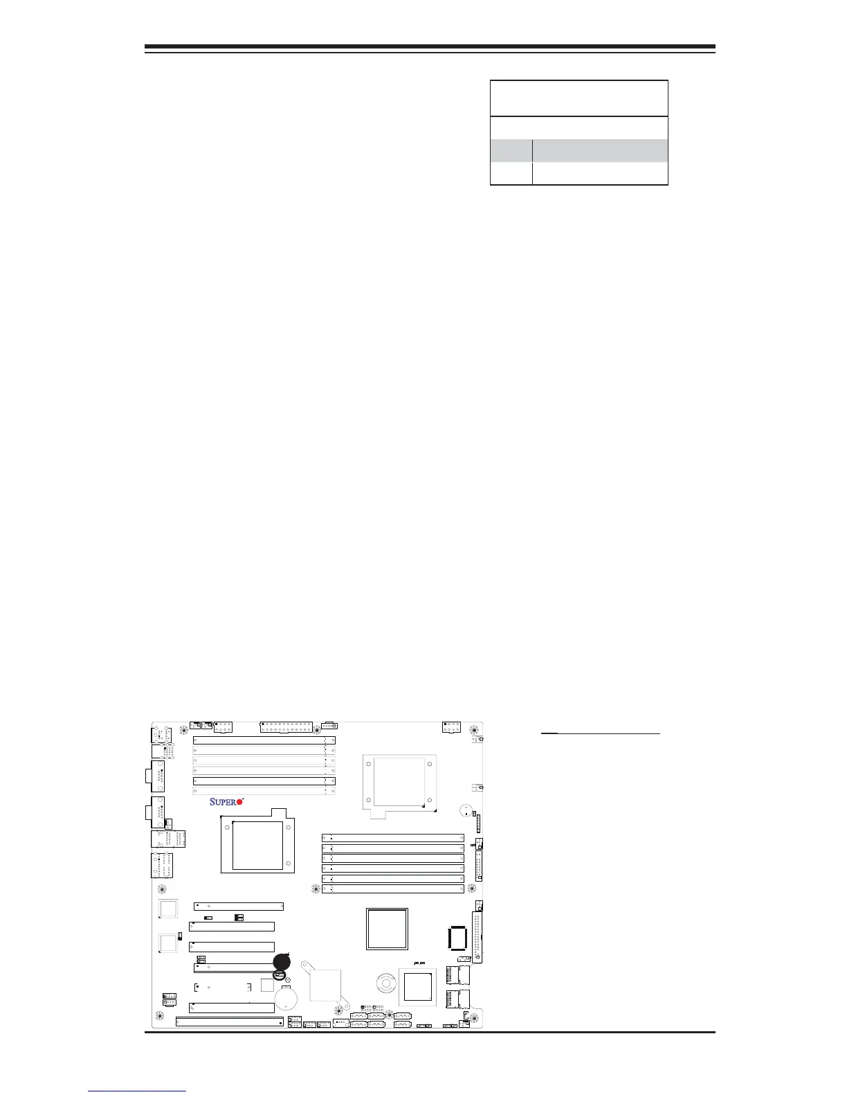
Jumper JPI1 allows you to enable or dis-
able CNF1/CNF2 (IEEE1394a) connec-
tion support. The default setting is Pins
1-2 to enable the connection. See the
table on the right for jumper settings.
CNF1/2 Enable
Jumper Settings
Jumper Setting De nition
1-2 Normal (Default)
2-3 1394a support Disabled

Table of Contents

Related product manuals