EasyManua.ls Logo

Suzuki DF9,9 - Df9.9 R;Df15 R

Suzuki DF9,9
320 pages
Print Icon
To Next Page IconTo Next Page
To Next Page IconTo Next Page
To Previous Page IconTo Previous Page
To Previous Page IconTo Previous Page
Loading...
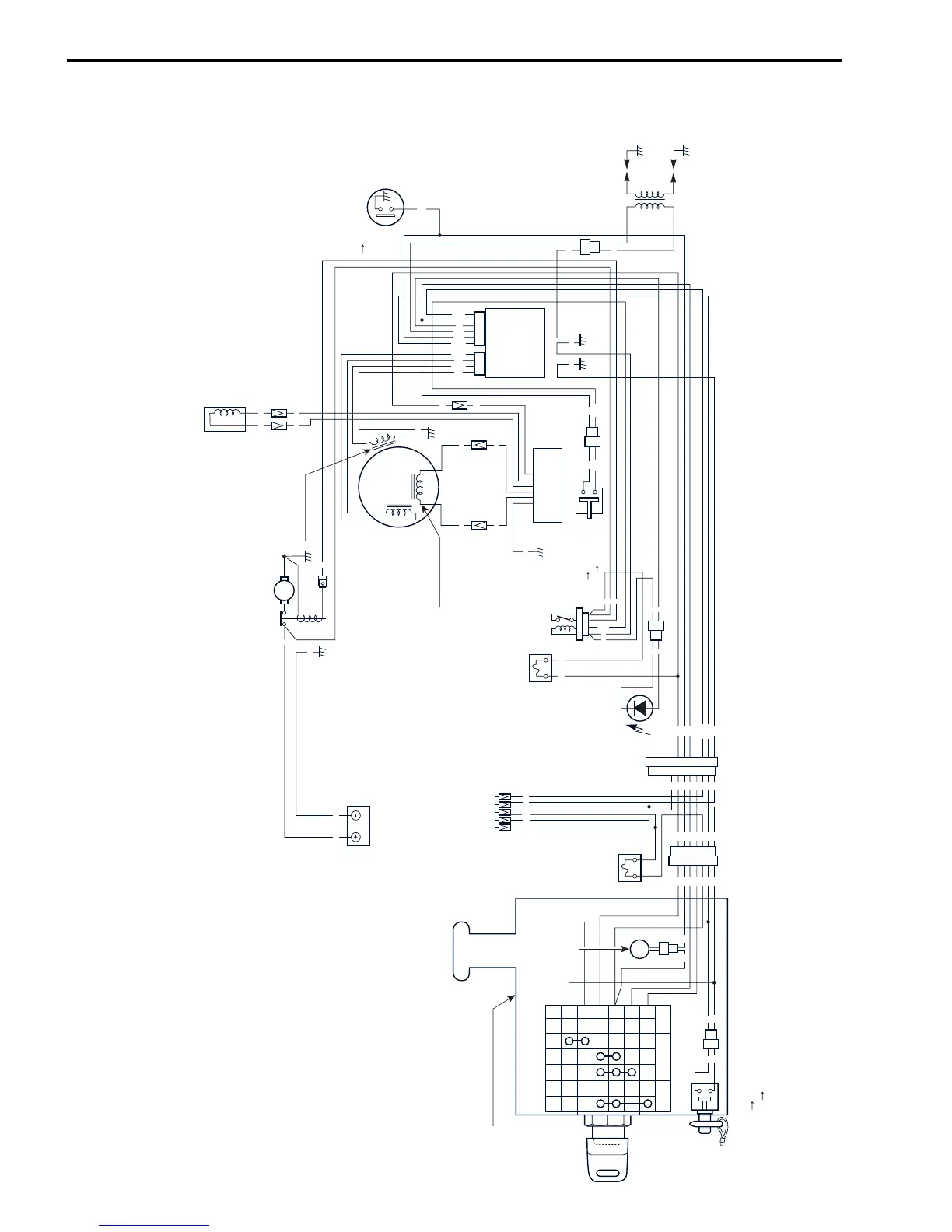
9-4 WIRE/HOSE ROUTING
DF9.9R/DF15R
BZ
PUSH TURN
GND
STOP
BATT
IG
START
B.Z
RESET
Gr
W
G
B
Br
O
ST
IG OFF
FREEPUSH
M
REMOTE CONTROL BOX
SUZUKI
CDI UNIT
BATTERY 12V 35AH
MAGNETO
CONDENSER
CHARGE COIL
STARTER MOTOR
FUSE 15A
FUSE 20A
RECTIFIER &
REGULATOR
IGNITION
SWITCH
B
G
B
Gr Bl
G
STARTER
MOTOR
RELAY
B
P
B
P
R
R
Br
Y/G
B
OO
B
Br
Y/G
B
R/G
Gr
Y
B
B
Y
R
W W
Y
Y Y
Y Y
R
B
B
B
B
Y/G
W
R
Auto-enrichener
(PTC heater)
OIL PRESSURE SWITCH
15 kPa
(0.15 kgf/cm
2
) or less
ON
NEUTRAL SWITCH
N ON
F.R OFF
CAUTION LAMP
(OIL PRESSURE)
PULSER COIL
BATTERY
CHARGE COIL
EMERGENCY STOP SWITCH
Lock plate IN RUN
Lock plate OUT STOP
Bl
B
G
R/B
Y/B
B/R
O
Br
Bl
P
Bl/R
IGNITION COIL
SPARK PLUG
W
Bl
Br
O
Gr
G
B
W
Bl
Br
O
Gr
G
B
Gr
W
Bl
Br
O
Y
G
B
B
B
R
R
R
W
Bl
Br
Y/B
Bl/R
B
CAUTION
BUZZER
WIRE COLOR
B ......... Black
Bl ........ Blue
Br ........ Brown
G ......... Green
Gr ....... Gray
O ......... Orange
P ......... Pink
R ......... Red
W ......... White
Y .......... Yellow
B/R ....... Black with Red tracer
BI/R ....... Blue with Red tracer
R/B ........ Red with Black tracer
R/G ....... Red with Green tracer
Y/B ........ Yellow with Black tracer
Y/G ........ Yellow with Green tracer

Table of Contents