EasyManua.ls Logo

tae TA Series - Digital - Analog Board; Bussystems - Profibus

tae TA Series
86 pages
Print Icon
To Next Page IconTo Next Page
To Next Page IconTo Next Page
To Previous Page IconTo Previous Page
To Previous Page IconTo Previous Page
Loading...
Instruction and Operating Manual
TA-U1...U280
Misprints and technical changes reserved
24
3.3.13 Bussystems - Profibus
X2 Connection to controlboard X7 Connection to Profibus plug
X2
X7
Profibus 0601
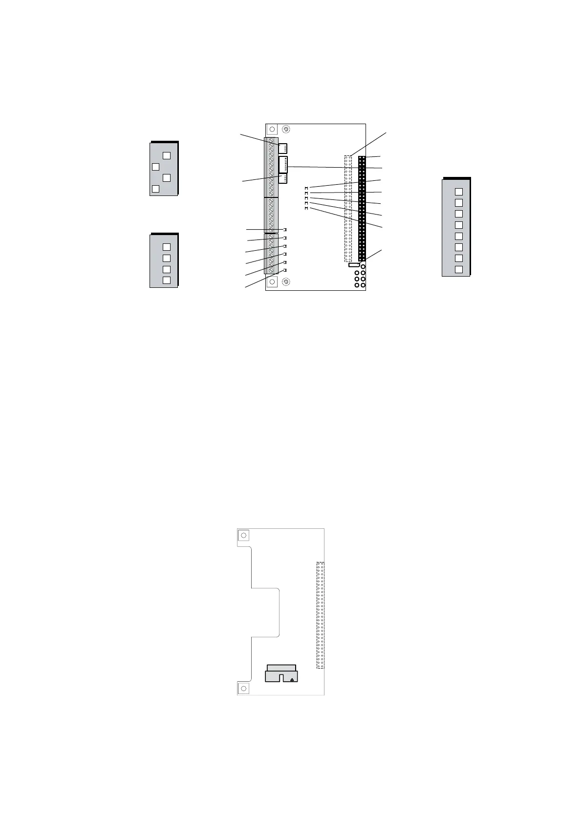
3.3.12 Digital - Analog board
X2 Connection to bussystems
X200 Connection to controlboard
S1 Analogue output V or mA
S2 Analogue output V or mA
S3 GND Connections digital and anlog
inputs
BR1 Readmode D/A transformer (left)
LD1 Yellow - digital output terminal 60
LD2 Yellow - digital output terminal 61
LD3 Yellow - digital output terminal 63
LD4 Yellow - digital output terminal 64
LD5 Yellow - digital output terminal 65
LD6 Yellow - digital intput terminal 52
LD7 Yellow - digital intput terminal 53
LD8 Yellow - digital intput terminal 54
LD9 Yellow - digital intput terminal 55
LD10 Yellow - digital intput terminal 56
LD11 Yellow - digital intput terminal 57
75
73
74
72
70
69
67
66
68
71
77
76
64
62
61
59
60
63
65
53
51
52
56
55
54
58
57
X2
X200
S2
LD5
LD4
LD3
LD2
LD1
BR1
S3
S1
LD6
LD7
LD8
LD9
LD10
LD11
BR1
S1
S3
LD11
LD10
LD9
LD8
LD7
LD6
DIP switch S1
(Factory adjustment)
OFFON
1
2
3
4
1
00
1
DIP switch S3
(Factory adjustment)
refer to chapter 5.4
OFFON
1
2
3
4
00 00
DIP switch S2
(Factory adjustment)
refer to chapter 5.4
OFFON
1
2
00
3
0
4
0
5
0
6
0
7
0
8
0
Analogboard 0501
X2 X200

Table of Contents

Related product manuals