EasyManua.ls Logo

Tait TM8110

Tait TM8110
578 pages
To Next Page IconTo Next Page
To Next Page IconTo Next Page
To Previous Page IconTo Previous Page
To Previous Page IconTo Previous Page
Loading...
420 Fault Finding of Control Head with Graphical Display TM8100/TM8200 Service Manual
© Tait Electronics Limited June 2006
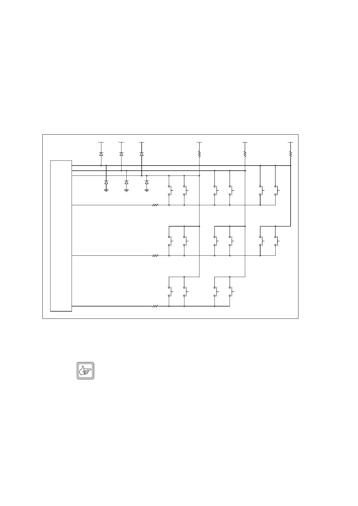
14.9 Function, Scroll, or Selection Keys Faulty
The eight keys of the main keypad (function, scroll, and selection keys) are
connected to the FPGA by an array of three columns and three rows.
During idle operation, the
KEY ROW signals are driven low by the FPGA and
the
KEY COL signals (pulled high by an external resistor) are monitored for
activity by the FPGA. A key-press will generate a high-to-low transition on
the associated column
KEY COL signal. This, in turn, will initiate a sequence of
high output levels on the
KEY ROW signals to identify which key was pressed.
The signal at the column side of the switch should be 3.3V. The row side of
the switch should be GND. A successful press will cause transition on
associated KEY_COL signal to low.
Note CCTM command 1009 can be used to monitor keypad press and
release events.
One Key Faulty If an individual key is faulty:
1. Use isopropyl alcohol and a soft lens-cleaning cloth to clean the pad
of the PCB switch contacts.
2. Visually inspect both PCB switch contacts (A and B) of a key for
short-circuits. Repair if necessary.
Figure 14.11 Circuit diagram of the function, scroll, and selection keys
KEY COL1
KEY COL2
KEY COL3
3
V
3
D604
D604
3
V
3
D620
D620
3
V
3
D602
D602
S601A
1
2
S601B
1
2
S602A
1
2
S602B
1
2
3
V
3 3
V
3
R620 R621
S603A
1
2
S603B
1
2
3
V
3
R622
Right Selection Key
F3 KeyF4 Key
R623
KEY ROW1
R624
R625
KEY ROW2
KEY ROW3
S604A
1
2
S604B
1
2
S605A
1
2
S605B
1
2
S606A
1
2
S606B
1
2
Scroll-Down Key Left Selection KeyScroll-Up Key
S607A
1
2
S607B
1
2
S608A
1
2
S608B
1
2
F1 KeyF2 Key
FPGA

Table of Contents

Other manuals for Tait TM8110

Related product manuals