EasyManua.ls Logo

TCM FB20-8 - Page 54

TCM FB20-8
259 pages
Print Icon
To Next Page IconTo Next Page
To Next Page IconTo Next Page
To Previous Page IconTo Previous Page
To Previous Page IconTo Previous Page
Loading...
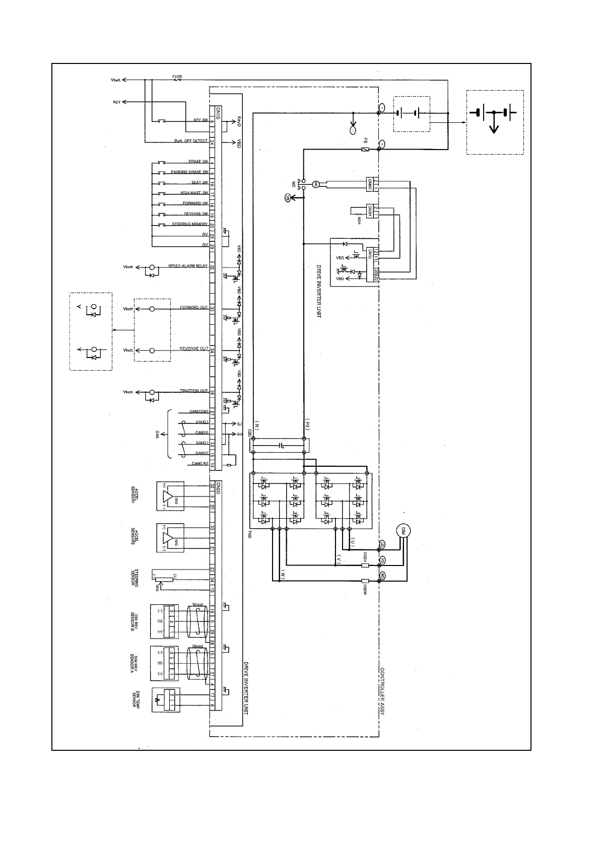
Fig. 3.5 Inverter Unit (drive motor) Circuit (2.0- to 3.5-ton Trucks with an EPS steering system
and 1-ton Class Trucks with an Orbitrol steering system)
Batt
DC48V
Batt
DC72V
48V
For trucks with capacities from 3 to 3.5 tons
For trucks with capacities
from 3 to 3.5 tons
j→│ずト
一一一一一一一一‑‑‑一一島民一一ー F
一一つ
ω
山一回一同﹂
fU$ε
KEY
寸可了 iml
骨官了 iMi
Vb,悦
yoO
司﹁
mZωoz‑
ii
¥1,,,怜
Vb.. tt,
=三
RM
ω
ゐ一
40
ω
mm
M‑zo
ωmzm02
E i
2i;
Ifn
Eiz
』「一一‑.J
L目白一一一一一一一一一一一一・‑1
︒}主
zm
︿
mmZωO
辺︑
P

Table of Contents