EasyManua.ls Logo

Teletek electronics ECLIPSE 8 - OPERATION INSTRUCTIONS; System Arming Modes

Teletek electronics ECLIPSE 8
40 pages
Print Icon
To Next Page IconTo Next Page
To Next Page IconTo Next Page
To Previous Page IconTo Previous Page
To Previous Page IconTo Previous Page
Loading...
Eclipse 8/16/32/99 Series - Installation Manual
12
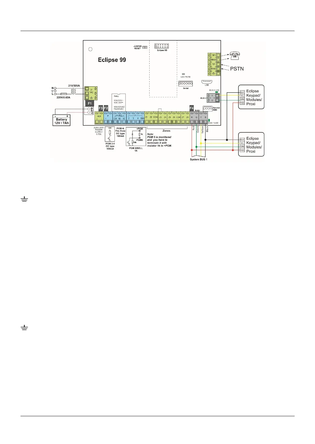
2.2.4 ECLIPSE 99
Figure 8. ECLIPSE 99 control panel
ECLIPSE 99 - Terminals and components:
21VAC Power supply from a mains transformer 21V/50VA, fuse 0.63А
Grounding
+/- AUX Power supply for detectors with consumption up to 0.75А
+PGM Power supply of auxiliary devices with consumption up to 0.75А
P1/REL (COM/NO/NC) Relay output, 10A@250VAC, 10A@30VDC
PGM 2, 3 Programmable outputs, 100mA, ОС type (open collector)
PGM 4 Programmable output/Fire zone (programmed at Menu 3. Programmable outputs), 100mA, ОС type (open collector)
PGM 5/BELL Monitored programmable output, high power up to 1А, ОС type (open collector), for connecting siren
Z1-Z8 Zone inputs
COM Common ground for the zones
R (Red), G (Green), Y (Yellow), B (Black) - System bus interface (System BUS 1) for connection of keyboards, proximity card
readers, expanders, etc.
Y (Yellow), G (Green) - System bus interface (System BUS 2) for connection of keyboards, proximity card readers,
expanders, etc. (Note: You can also use an external power supply to power the devices connected to BUS 2.)
Jumper RESET Jumper for total hardware reset of the control panel
Serial Interface for PC connection
Service KBD Connecting a service keyboard see item 6 (available for HW 1.2 and higher)
VOICE - Interface connector for mounting of Voice module ECLIPSE VD
BATT Terminals for connecting the back-up battery
USB Micro USB port for programming with ProsTE software (available for HW 1.4 and higher)
PSTN terminals:
TIP1, RING1 Connect the telephone device
TIP, RING Connect the PSTN line
Grounding
Fuses, PTC type:
F1 Fuse for the back-up battery: 2.5A
F2 Fuse for PGM outputs: 0.75A
F3 Fuse for AUX outputs: 0.75A
F4 Fuse for the system bus: 0.5А
LED indication:
BUS 1 LED LED Indication for the status of the System BUS 1*
BUS 2 LED LED Indication for the status of the System BUS 2*
PSTN LED LED Indication for the status of the built-in digital communicator.
* The indication is the same as described for ECLIPSE 32 control panel refer to item 2.2.3.

Other manuals for Teletek electronics ECLIPSE 8

Related product manuals