EasyManua.ls Logo

Titon TP408HMBE - Page 19

Titon TP408HMBE
32 pages
Print Icon
To Next Page IconTo Next Page
To Next Page IconTo Next Page
To Previous Page IconTo Previous Page
To Previous Page IconTo Previous Page
Loading...
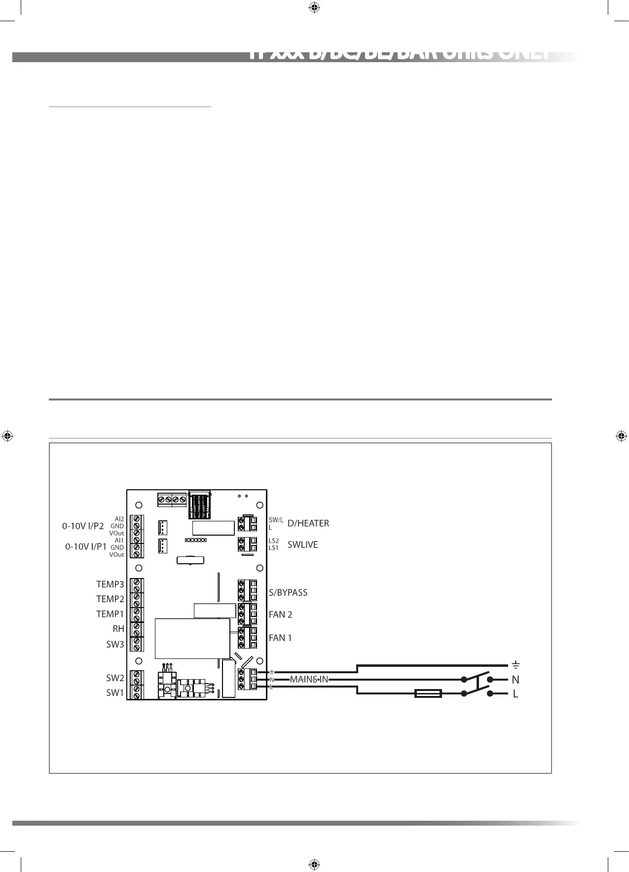
Wiring Diagrams TPxxx B/BC/BE/BAR Units
Supply
TPxxx B/BC/BE/BAR Units ONLY
Supply Air Comfort Control
The Cold Climate units TPxxx BC
& BE have additional fan speed
control. If the supply to dwelling air
temperature falls below 10°C the unit
will limit the maximum speed to 45%.
Additionally, if the supply to dwelling
air temperature falls below 6°C the unit
will stop both fans.
Supply wiring Ref EE167
230V~
2 Pole
Isolator
Fuse
19