EasyManua.ls Logo

Toro 30607 - Counterbalance Pressure

Toro 30607
374 pages
Print Icon
To Next Page IconTo Next Page
To Next Page IconTo Next Page
To Previous Page IconTo Previous Page
To Previous Page IconTo Previous Page
Loading...
Groundsmaster 4000--D/4010--DHydraulic System Page 4 -- 46
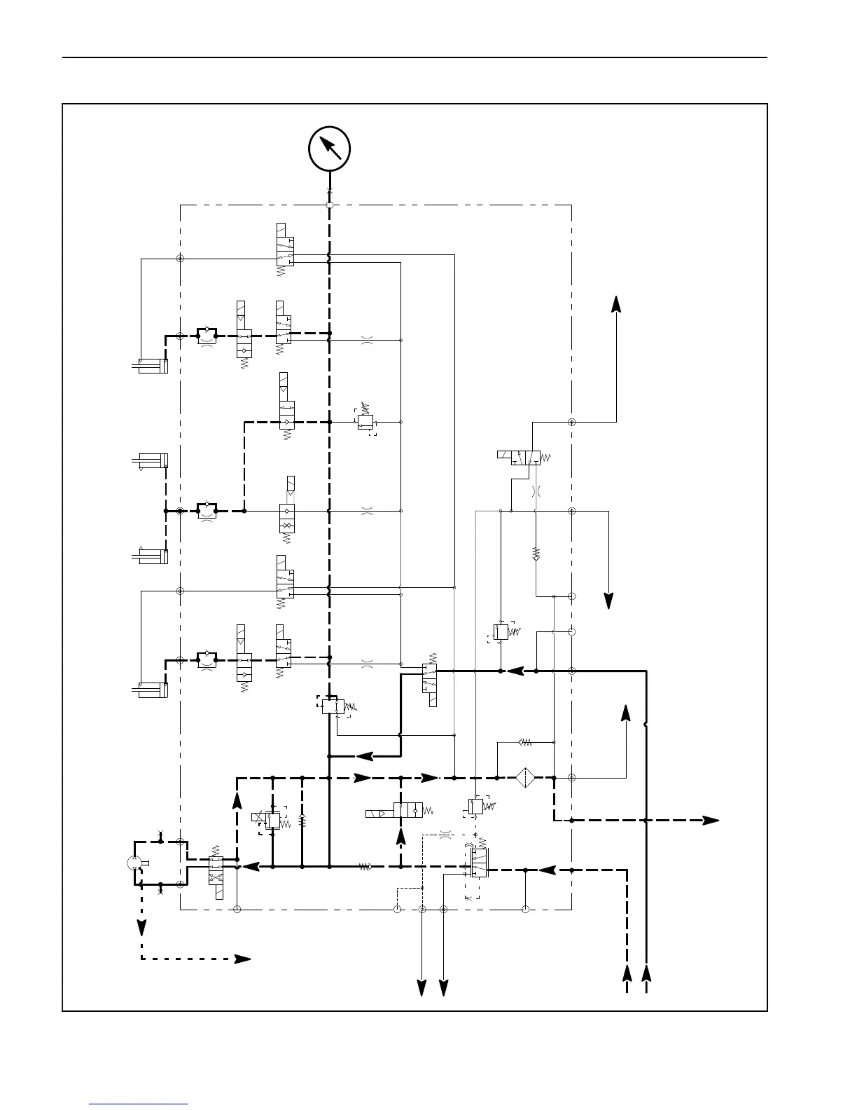
Counterbalance Pressure (Using Pressure Gauge)
PRESSURE
GAUGE
S10
RV1
CV1
S2
S4
S5
PRV
P4 CH2 P3
EC
CF
LS
S3
OR1
C3
OR4
.040
S6
OR5
.070
C4 C2 C5
RV2
S7
S9
S8
C6
M1
M2
CH1
CV3
CH4
OR2
.063
OR6
.063
OR3
.070
OR7
.070
T 2SPCH3
G2
G4
CV4
PR
G1
G3
3250
PSI
1350
PSI
4PSI
4PSI
.030
OR9
S1
3300 PSI
RV3
S12
S11
CV2
4PSI
0.51 CID
1.125” ROD
.030”
80
PSI
60
PSI
310
PSI
2.50” BORE
6.50” STROKE
1.50” BORE
3.08” STROKE
RAM CYLINDERS
CENTER DECK
1.125” ROD
2.50” BORE
6.50” STROKE
GG
COMBINATION MANIFOLD
RIGHT DECK
LEFT DECK
TO FRONT
TO RESERVOIR
TO STEERING
CONTROL VALVE
TO STEERING
CONTROL VALVE
FROM GEAR PUMP
TRACTION
VALVE
TO PISTON
PUMP
TO RESERVOIR
TO WHEEL/AXLE
MOTORS
FROM GEAR PUMP
1600 PSI

Table of Contents

Other manuals for Toro 30607

Related product manuals