EasyManua.ls Logo

Toro 30607 - Page 98

Toro 30607
374 pages
Print Icon
To Next Page IconTo Next Page
To Next Page IconTo Next Page
To Previous Page IconTo Previous Page
To Previous Page IconTo Previous Page
Loading...
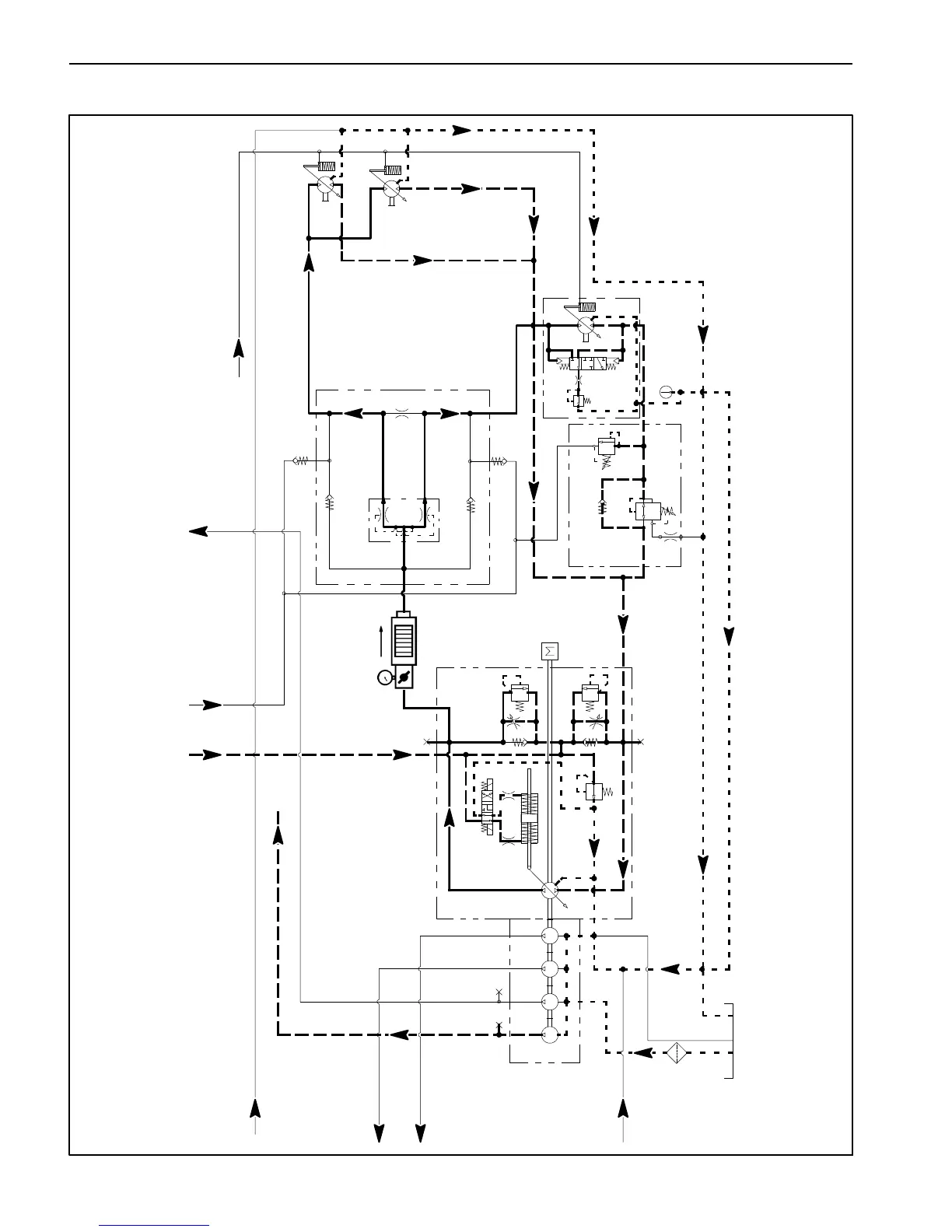
Groundsmaster 4000--D/4010--DHydraulic System Page 4 -- 52
Piston (Traction) Pu mp Flow Test (Using Tester with Pressure Gauge and Flow Meter)
3.3 GPM
4.4 GPM
14.3 GPM
14.3 GPM
P1
16.8 GPM
13.7 GPM
PR
380 PSI
RV
650 PSI
.050
CV
T
P2
M8
CH
OR1
250 PSI
2.14 CID /
1.16 CID
200 PSI
4350 PSI
5000 PSI
M1
OR
M3
CH1
FRONT
CH2
.063
CV1
CV2
HFD
.0315
.0315
0.4
CID
0.3 1.29 1.29
CID CID CID
2.75
CID
Split
55--45
REAR
TRACTION
MANIFOLD
ENGINE
30.5
GPM
1.2 CID /
0.64 CID
1.2 CID /
0.64 CID
GG
G
G
TRACTION
MANIFOLD
FROM COMBINATION MANIFOLD
TO
COMBINATION
MANIFOLD
FROM
COMBINATION
MANIFOLD
FROM
COMBINATION
MANIFOLD
FROM
PTO MANIFOLD
CENTER DECK
FROM
OIL FIL TER
TO
PTO MANIFOLD
LEFT DECK
TO
PTO MANIFOLD
CENTER DECK
TO COMBINATION MANIFOLD
TESTER

Table of Contents

Other manuals for Toro 30607

Related product manuals