EasyManua.ls Logo

Toro 72932 - Page 81

Toro 72932
84 pages
Print Icon
To Next Page IconTo Next Page
To Next Page IconTo Next Page
To Previous Page IconTo Previous Page
To Previous Page IconTo Previous Page
Loading...
g020788
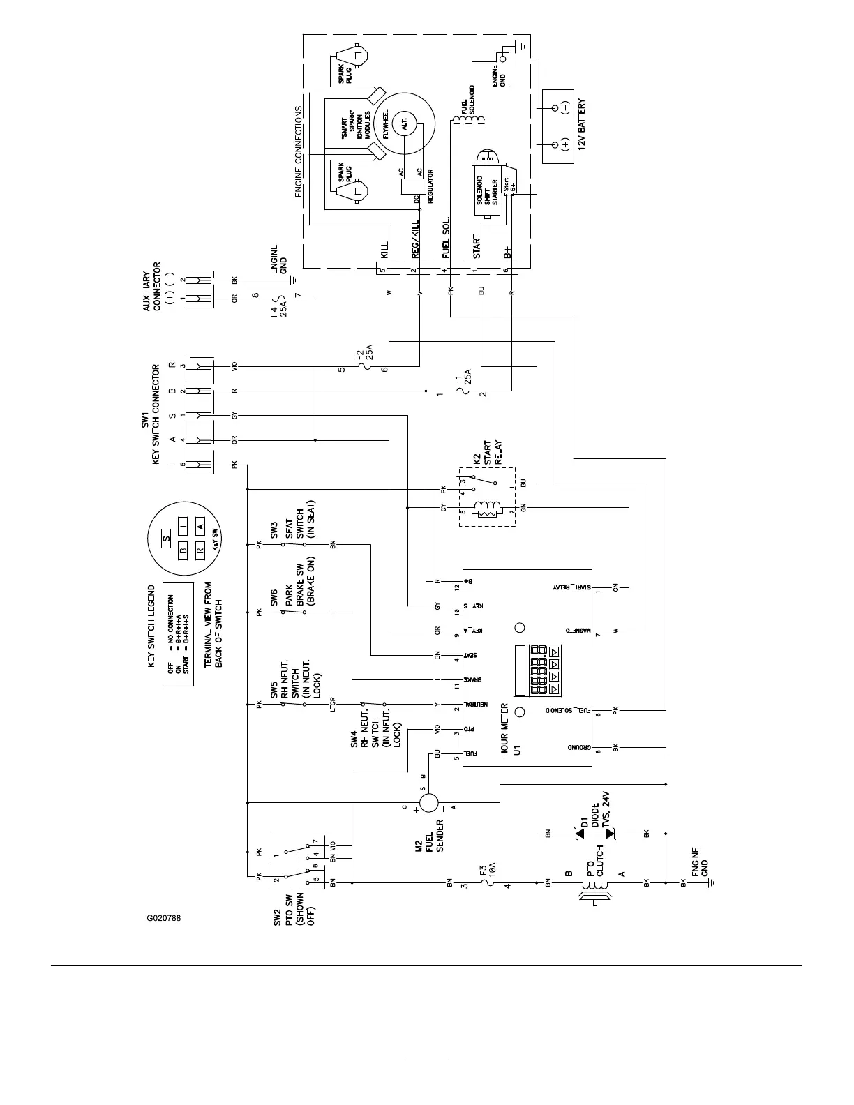
ElectricalSchematic—KohlerEngines(Rev.A)
81

Table of Contents