EasyManua.ls Logo

Toro Reelmaster 3575-D - Piston Pump;Hydrostat Flow and Relief Pressure Test

Toro Reelmaster 3575-D
338 pages
Print Icon
To Next Page IconTo Next Page
To Next Page IconTo Next Page
To Previous Page IconTo Previous Page
To Previous Page IconTo Previous Page
Loading...
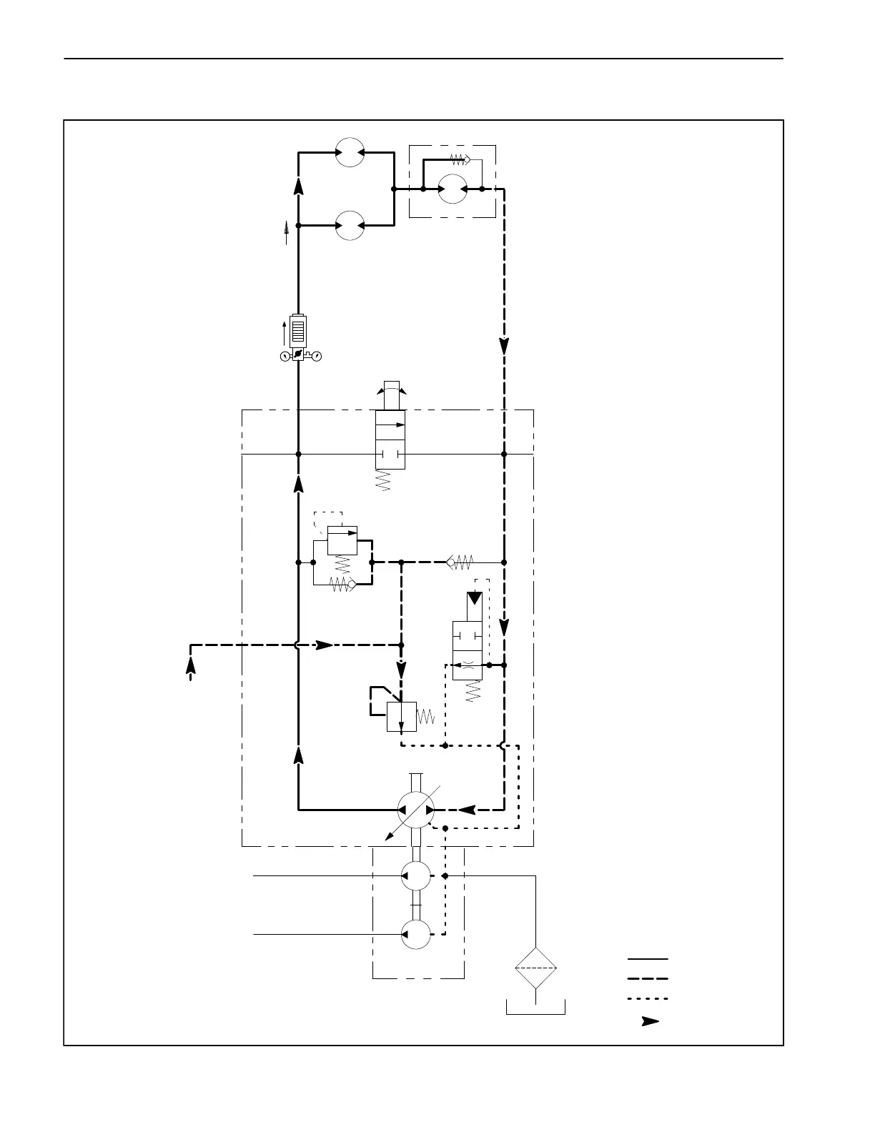
Reelmaster 3550−D/3555−D/3575−DHydraulic System Page 4 − 42
Traction Circuit Testing − Piston Pump/Hydrostat Flow and Relief Pressure Test
High Pressure
Low Pressure
Return or Suction
Flow
TO STEERING CONTROL
VALVE (P) PORT
3500 PSI
100−150 PSI
G2
G1
C2
200−300
TOW
VALVE
SUCTION
STRAINER
P1
P2
TRACTION WHEEL MOTORS
FRONT
REAR
FRONT
PSI
GEAR PUMP
TO MOW CONTROL
MANIFOLD (P) PORT
HYDROSTAT
CHARGE
CHARGE RELIEF
FORWARD
TESTER WITH
PRESSURE GUAGE
AND FLOW METER
LOWER
PORT
UPPER
PORT
CIRCUIT
PRESSURE

Table of Contents

Related product manuals