EasyManua.ls Logo

Toshiba HWS-804XWHM3 series - Water Piping; Water Circuit

Toshiba HWS-804XWHM3 series
64 pages
Print Icon
To Next Page IconTo Next Page
To Next Page IconTo Next Page
To Previous Page IconTo Previous Page
To Previous Page IconTo Previous Page
Loading...
8
Outdoor Units: HWS-1104H8(R)-E, HWS-1404H8(R)-E, HWS-1604H8(R)-E
Hydro Units: HWS-1404XWH**-E
Water Piping
WARNING
• Ensure that the heating circuit, and all components of the heating circuit, are installed in accordance with
all National and local regulations
• The water pipes must not be installed where they are exposed to low ambient air temperatures. This is to
prevent the water freezing in the pipes
• Make sure that water pipes have sufficient pressure resistance
(The setting value of the pressure relief valve is 0.3 MPa).
CAUTION
Do not use zinc plated water pipes. When steel pipes are used, insulate both ends of the pipes.
• The water to be used must meet the water quality standards specified in EN directive 98/83 EC.
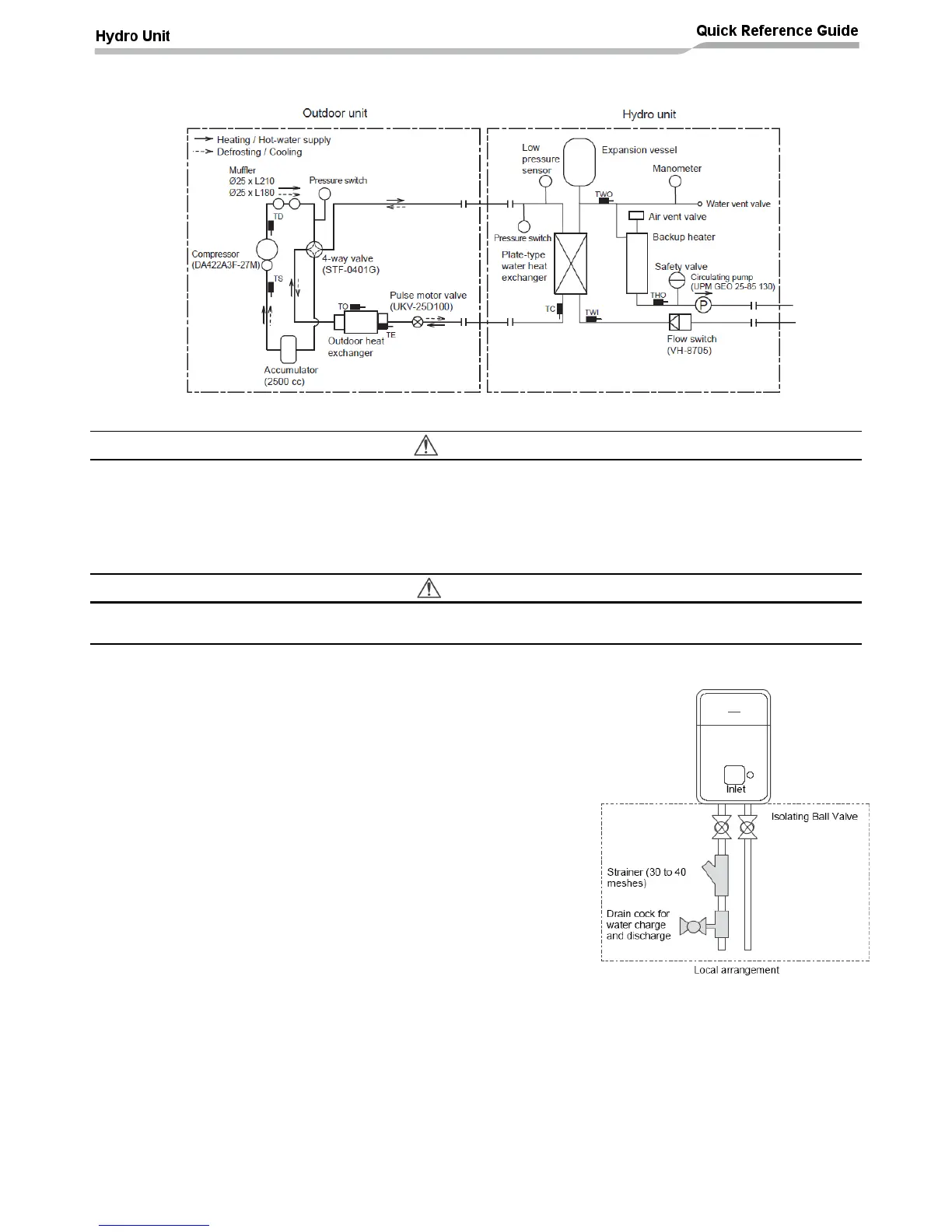
Water Circuit
Install a strainer with 30 to 40 meshes (procure locally) at the
water inlet of the Hydro Unit
Install drain cocks (procure locally) for water charge and discharge
at the lower part of the Hydro Unit
The ESTIA system can only be used on pressurised heating
circuits. If the system is used on gravity fed heating circuits then
system failure may occur

Related product manuals