EasyManua.ls Logo

Trace Engineering SW Series - Page 11

Trace Engineering SW Series
40 pages
Print Icon
To Next Page IconTo Next Page
To Next Page IconTo Next Page
To Previous Page IconTo Previous Page
To Previous Page IconTo Previous Page
Loading...
©1999 Trace Engineering
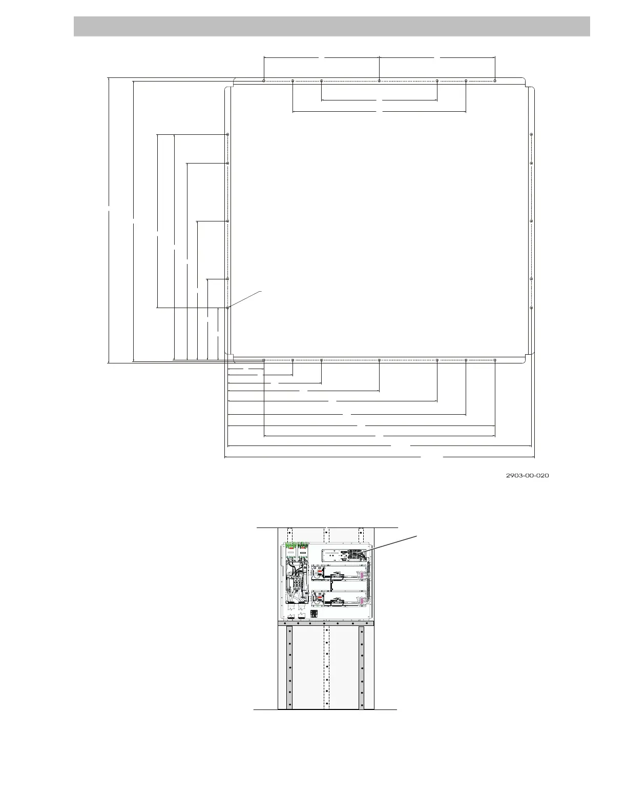
Figure 4
Mounting Hole Dimensions
7 1/4"
11 1/4"
19 1/4"
27 1/4"
31 1/4"
5"
9"
13"
21"
29"
33"
37"
ø3/8" X 24
32"
42 1/16"
42 15/16"
38 13/16"
39 9/16"
24"
16 16
24
16
2.0 INSTALLATION
5
2903-00-004
Figure 4A
Mounted Power Panel
Adjust the height of the panel so the
bypass switch is within easy reach

Related product manuals