EasyManua.ls Logo

Trane 4TCC4024A1000A - Step 2 Determine Unit Clearances

Trane 4TCC4024A1000A
28 pages
Print Icon
To Next Page IconTo Next Page
To Next Page IconTo Next Page
To Previous Page IconTo Previous Page
To Previous Page IconTo Previous Page
Loading...
18-EB30D1-1G-EN
5
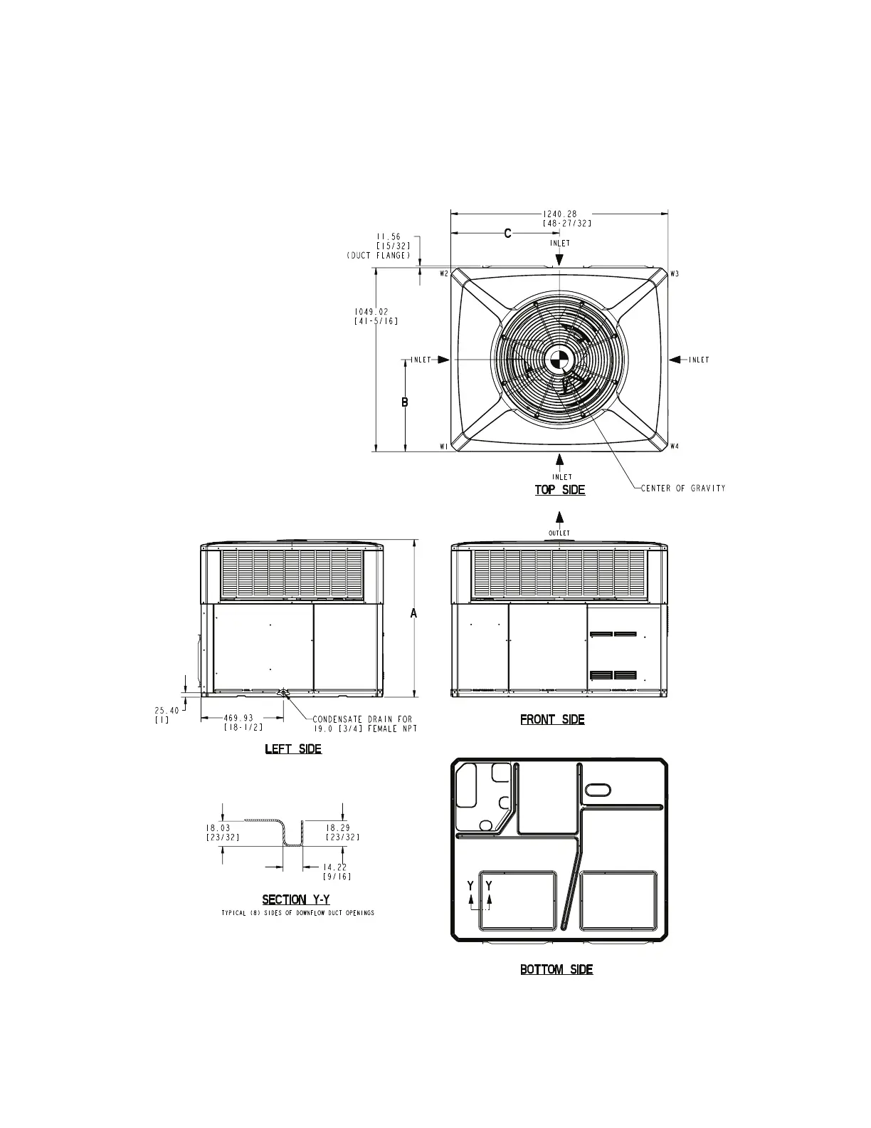
Step 2 Determine Unit Clearances
Figure 1. 2 3 TON MODELS
Note: The view labeled Bottom Side
represents the base as viewed looking
up from underneath the unit.

Related product manuals