EasyManua.ls Logo

Trane 4TTX7 - Refrigerant Circuit Diagrams (4 Ton Units); Refrigerant Circuit Diagrams (5 Ton Units)

Trane 4TTX7
34 pages
Print Icon
To Next Page IconTo Next Page
To Next Page IconTo Next Page
To Previous Page IconTo Previous Page
To Previous Page IconTo Previous Page
Loading...
24 18-AC125D1-1A-EN
Printed from D159175
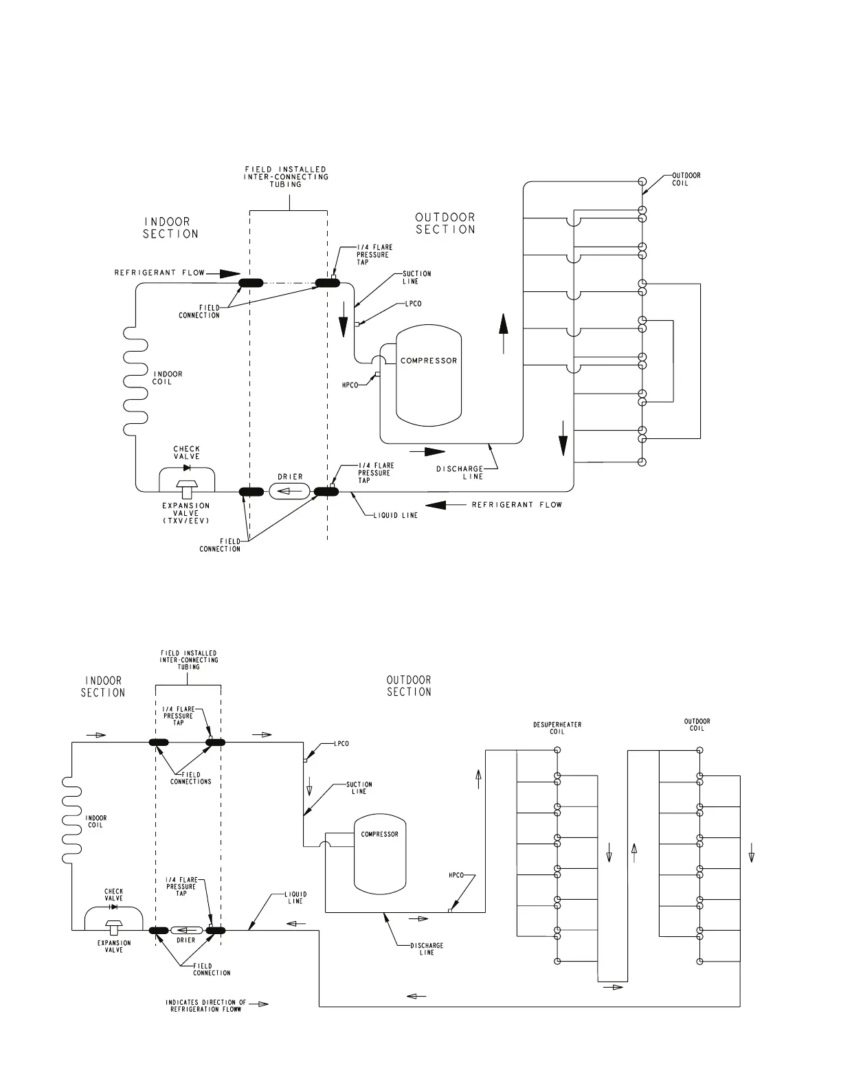
Cooling Refrigeration Cycle
4 Ton Units
5 Ton Units
Cooling Refrigeration Cycle
Printed from D158965

Related product manuals