EasyManua.ls Logo

Trane 7½ - 20 Tons - Dimensional Data - 5 Ton Air Handlers

Trane 7½ - 20 Tons
64 pages
Print Icon
To Next Page IconTo Next Page
To Next Page IconTo Next Page
To Previous Page IconTo Previous Page
To Previous Page IconTo Previous Page
Loading...
46 SSP-PRC001-EN
Dimensional Data
5 Tons
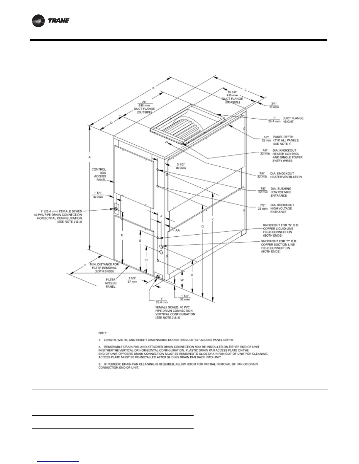
Figure 24. 5 Tons TWE060A, 060B Air Handlers. All dimensions are in inches.
Table 39. Air Handler Dimensions (in.)
Tons Model No. A B C D E F G H J K Q
5 TWE060A 48 38 22 8 19-1/2 26 15-7/8 14-1/8 1-7/8 42-1/8 34-5/8
5 TWE060B 48 38 22 8 19-1/2 26 16-1/4 13-1/4 1-1/8 42-1/8 34-5/8
Tons Model No. S V W Y AA
5 TWE060A 3/8 1-1/8 1-7/8
5 TWE060B 5/16 14-3/4 11-1/8 3/4 2

Related product manuals