EasyManua.ls Logo

Trane 7½ - 20 Tons - Dimensional Data - 71;2 & 10 Ton Air Handlers

Trane 7½ - 20 Tons
64 pages
Print Icon
To Next Page IconTo Next Page
To Next Page IconTo Next Page
To Previous Page IconTo Previous Page
To Previous Page IconTo Previous Page
Loading...
SSP-PRC001-EN 47
Dimensional Data
7½ & 10 Ton
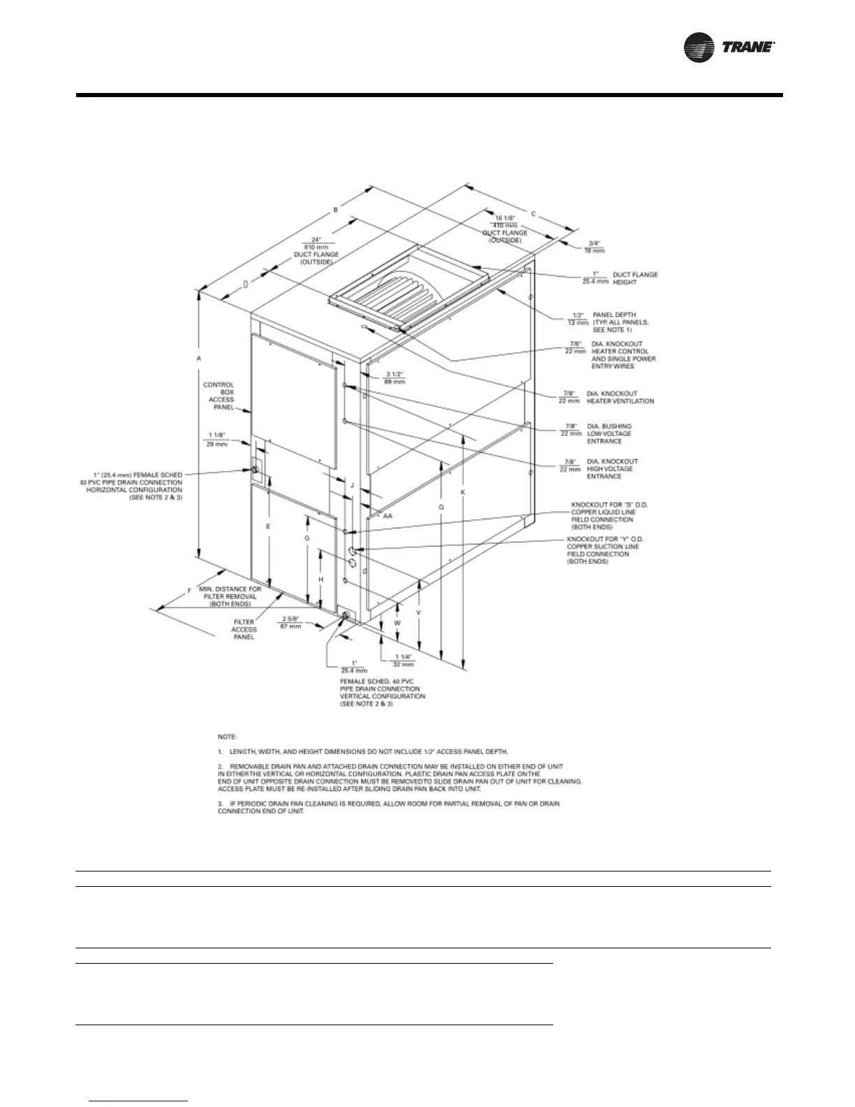
Figure 25. 7½ & 10 Tons TWE090A, 120A; TWE090B, 120B Air Handlers. All dimensions are in inches.
Table 40. Air Handler Dimensions (in.)
Tons Model No. A B C D E F G H J K
TWE090A 54 47-1/2 25 11-3/4 22-3/8 22 17-3/4 4 45-1/4
TWE090B 54 47-1/2 25 11-3/4 22-3/8 22 20-1/8 16 2-1/8 45-1/4
10 TWE120A 54 63-12 25 19-3/4 22-3/8 22 17-3/4 4 45-1/4
10 TWE120B 54 63-1/2 25 19-3/4 22-3/8 22 20-1/8 16 2-1/8 45-1/4
Tons Model No. Q S V W Y AA
TWE090A 38-1/8 1/2 15 1-3/8 2
TWE090B 38-1/8 3/8 18-3/4 14 1-1/8 2-1/8
10 TWE120A 38-1/8 1/2 15 1-3/8 2
10 TWE120B 38-1/8 3/8 18-3/4 14 1-1/8 2-1/8

Related product manuals