EasyManua.ls Logo

Trane CGWF SE - Page 42

Trane CGWF SE
71 pages
Print Icon
To Next Page IconTo Next Page
To Next Page IconTo Next Page
To Previous Page IconTo Previous Page
To Previous Page IconTo Previous Page
Loading...
Page 43
7.6.5
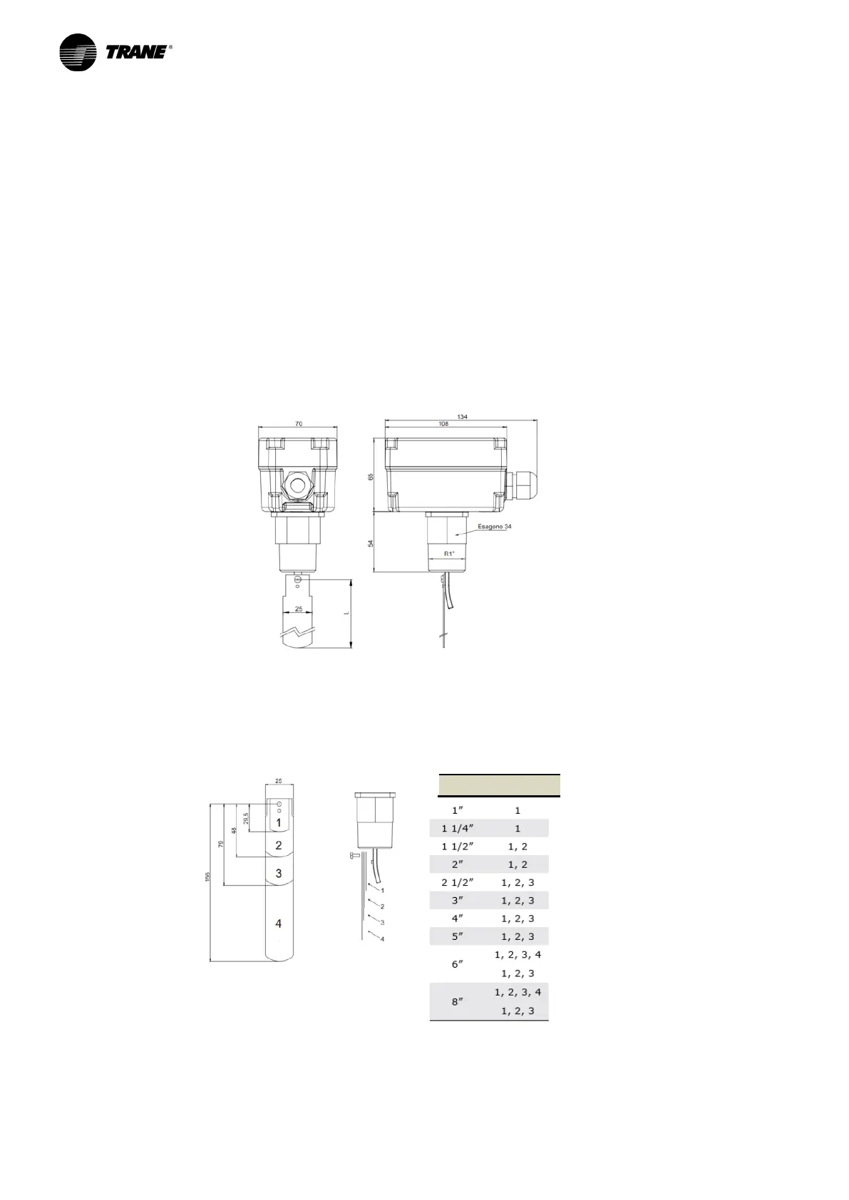
Flow switch installation
To ensure adequate water flow through the evaporator, install a flow switch on the water circuit. The flow switch must be
installed according to the relevant hydraulic diagram among those reported in 7.5 HYDRAULIC VERSIONS . The purpose of
the flow switch is to stop the unit in case of an interruption of the water flow while protecting the evaporator from freezing.
Since no water flow control is installed on board the unit, the installation of the flow switch, always provided as a loose
accessory by Trane, in the customer’s plant is mandatory.
The flow switch installation can be horizontal and vertical, screw-in thread, RP 1" (ISO7/1). It should be installed far from
elbows or throttling with an arrow on flow direction. If pipe is vertical recalibrate range to balance paddle weight. If the device
is downwards mounted take care to slags, and apply it in a straight pipe far from filters, valves, etc with length at least 5
times the diameter of pipe upstream and downstream the unit. The paddles must be installed starting from the shortest.
Blade type flow switches are available as loose accessories and are suitable for harsh environments and for pipes with
diameters from 1” to 8”. The flow switch has a contact which must be wired, by the contractor,
on the jobsite. Check the unit
wiring diagram for more information. See the instruction sheet inside the flow switch box for information about positioning
and settings.
PIPES TABLES
Dimensions (mm)
Paddle
Figure 30
Figure 27

Related product manuals