EasyManua.ls Logo

Trane EXHF - GEH 12,5-15 T 60 Hz, R Return;Geh 10-12,5 T 50 Hz, R Return, Waterside

Trane EXHF
118 pages
Print Icon
To Next Page IconTo Next Page
To Next Page IconTo Next Page
To Previous Page IconTo Previous Page
To Previous Page IconTo Previous Page
Loading...
Unit Dimensions and Weights
WSHP-SVX01L-EN 47
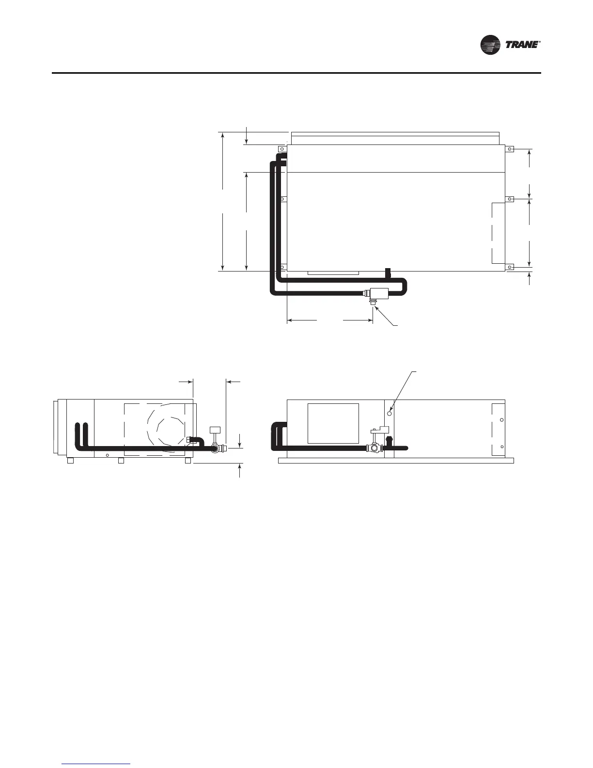
Figure 40. GEH 12½-15 tons (150-180) 60 Hz, right return; GEH 10-12½ tons (120-150) 50 Hz, right return, waterside
economizer
(a)(b)
(a)Entering water is on the AB port.
(b)Field piping required on waterside economizer.
48 3/4"
(1238)
9 7/8"
(251)
42"
(1067)
56 1/2"
(1435)
1 5/8" (42) OD COPPER TO
FIELD SUPPLY PIPING
18 1/2"
(470)
29 3/4"
(756)
2 1/4"
(57)
12"
(305)
5 3/8"
(137)
1 1/2" (38) NPTI FOR
FIELD RETURN PIPING

Table of Contents

Related product manuals