EasyManua.ls Logo

Trane Foundation EDK090 - Page 14

Trane Foundation EDK090
60 pages
Print Icon
To Next Page IconTo Next Page
To Next Page IconTo Next Page
To Previous Page IconTo Previous Page
To Previous Page IconTo Previous Page
Loading...
14
RT-SVX096A-EN
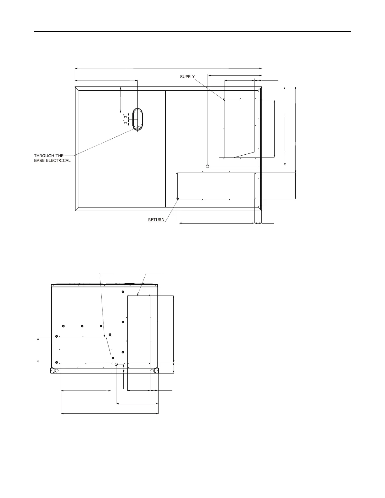
Figure 4. Gas/electric units bottom view (in inches)
NOTES:
1.THROUGH THE BASE GAS AND ELECTRICAL IS NOT STANDARD ON ALL UNITS.
2.VERIFY WEIGHT, CONNECTION, AND ALL DIMENSION WITH INSTALLER DOCUMENTS BEFORE INSTALLATION.
29-5/8”
88-7/16”
12-7/16
25-5/8”
3-7/16”14
27-5/16
37-5/8
40-11/16
12-3/8
3-7/16”36-7/16”
Figure 5. Foundation units back view (horizontal configuration) (in inches)
53-3/16”
4-9/16”
23”
4-15/16”
5-5/8”
36-7/16”
14”
12-3/8”27-5/16”
RETURN
SUPPLY
Dimensional Data

Table of Contents

Related product manuals