EasyManua.ls Logo

Trane GECA - Page 54

Trane GECA
68 pages
Print Icon
To Next Page IconTo Next Page
To Next Page IconTo Next Page
To Previous Page IconTo Previous Page
To Previous Page IconTo Previous Page
Loading...
WSHP-PRC004-EN54
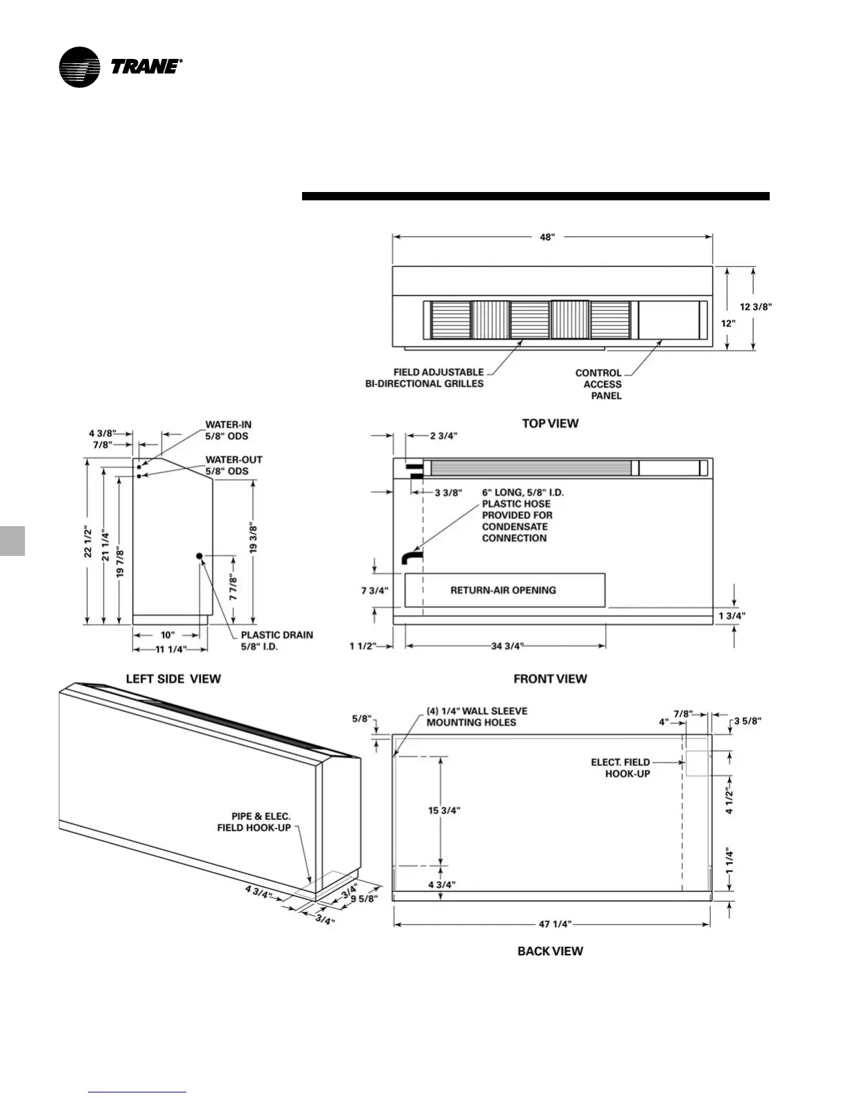
Dimensional
Data
LH Std Length/
Low Ht. Cabinet
Left Hand Piping Connection
(Low Height Unit)
GECA 006-015
1" = 25.4 mm

Related product manuals