EasyManua.ls Logo

Trane GECA - Chassis Dimensions

Trane GECA
68 pages
Print Icon
To Next Page IconTo Next Page
To Next Page IconTo Next Page
To Previous Page IconTo Previous Page
To Previous Page IconTo Previous Page
Loading...
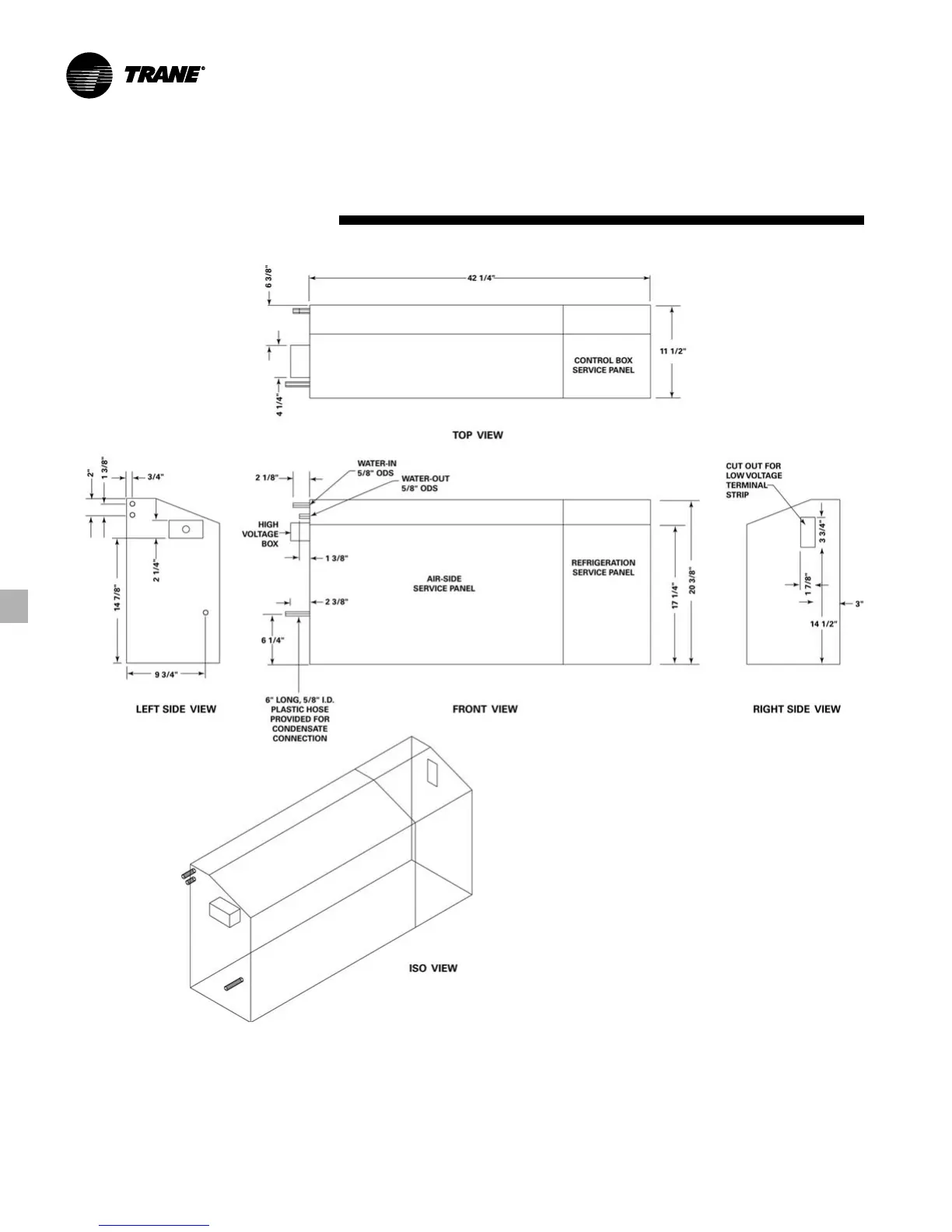
WSHP-PRC004-EN56
Dimensional
Data
LH Chassis
ONLY
Left Hand Piping Connection
(Chassis Only)
GECA 006-015
1" = 25.4 mm

Related product manuals