EasyManua.ls Logo

Trane MWD507 - Page 29

Trane MWD507
30 pages
Print Icon
To Next Page IconTo Next Page
To Next Page IconTo Next Page
To Previous Page IconTo Previous Page
To Previous Page IconTo Previous Page
Loading...
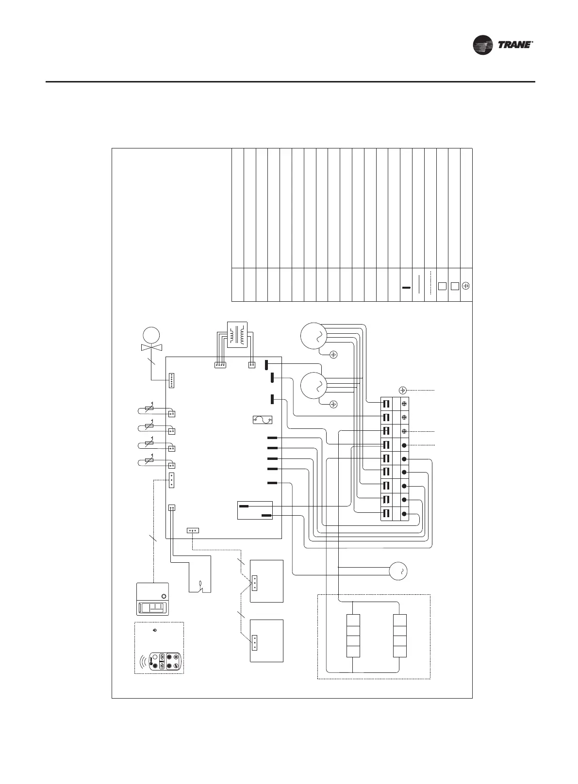
MW(C)D524 with condensate water lift pump
FL
FH
FM
EH2
Option
EH1
N
TB1
AU-H
LN
PENL
FAN1 FAN2
RE
220~240V/50Hz
BL
BK
BR
FT
4
WRC
M
EV1
5
t
AN1
L
J1
P11
P6
T
F1
t
AN2
t
AN3
t
AN4
P9
P1
R
Option
P10
CN3
N2
N1
CN1
CN2
CN8
YE
YE
N
J2
M2
PUMP
CN4/CN5
CN4TB2
3 3
SA1
CN12
Out door
UNIT
In door
UNIT
MAIN BOARD
MED
LOW
HIGH
SUP LOW
Pump
FAN
EV1
TB1
WRC
J1
F1
T
N
L
EH
PUMP
SA1
AN1
AN2
AN3
AN4
Fan motor
Relay (for electric heater)
Wiring control panel
Terminal connector
Fuse
Transformer
Electronic expansion valve
Local wiring
Neutral
Power line
Coil middle temperature sensor
Coil outlet temperature sensor
Coil inlet temperature sensor
Connector on main board
Ground
Room temperature sensor
Factury wiring
Electric heater
Water draining pump
Water level switch
RE
BL
BK
BR
Electrical wiring diagram
AMS-SVX04A-EN 29

Related product manuals