EasyManua.ls Logo

Trane Precedent FIADMPR101 - Page 12

Trane Precedent FIADMPR101
16 pages
Print Icon
To Next Page IconTo Next Page
To Next Page IconTo Next Page
To Previous Page IconTo Previous Page
To Previous Page IconTo Previous Page
Loading...
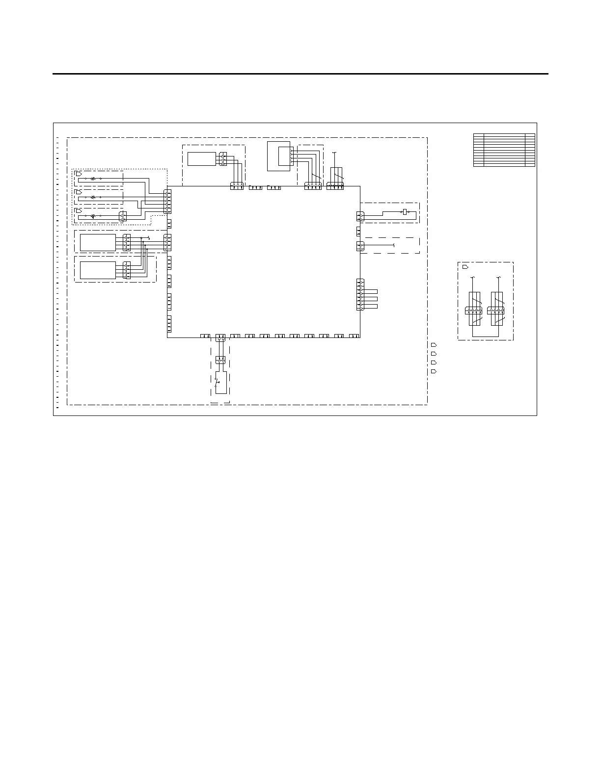
Figure 17. Fresh air options module
LEGEND
REF DES DESCRIPTION LINE NO
CFS SWITCH - CLOGGED FILTER 349
ECA ACTUATOR - ECONOMIZER 321
FOM MODULE - FRESH AIR OPTIONS 312
OAH SENSOR - OUTDOOR AIR HUMIDITY 313
RAH SENSOR - RETURN AIR HUMIDITY 309
RASD SENSOR - RETURN AIR SMOKE DETECTOR 305
RAT SENSOR - RETURN AIR TEMP 317
RBA ACTUATOR - ECONOMIZER, LOW LEAK 326
WCI MODULE - WIRELESS COMMUNICATIONS 306
XFR CONTACTOR - POWER EXHAUST 316
J9
+
+-
-
PPF88
PPM86
J6
BK
R
BK R BL O
BK R BL O
BK
R
BL
O
BK BK
RR
BL BL
OO
BK
R
BL
O
J8
BK
301
302
303
304
305
306
307
308
309
310
311
312
313
314
315
316
317
318
319
320
321
322
323
324
325
326
327
328
329
330
331
332
333
334
335
336
337
338
339
340
341
342
343
344
345
346
347
348
349
350
351
352
353
P9
RED
24 VDC OUT
24 VDC OUT
RETURN AIR TEMP INPUT
RETURN AIR HUMIDITY INPUT
OUTDOOR AIR HUMIDITY INPUT
COMMON
P10
GRAY
ANALOG OUTPUT 4
COMMON
P11
BLUE
24 VDC OUT
OA DAMPER FEEDBACK
OA DAMPER OUT
COMMON
J2
WHITE
COMMON
UNIVERSAL IO 2 (ALT)
5 VDC OUT
P12
BLACK
24 VDC OUT
UNIVERSAL IO 1
COMMON
TRANSDUCER ZEROING PIN
P13
WHITE
24 VAC OUT
UNIVERSAL IO 2
COMMON
TRANSDUCER ZEROING PIN
P14
PURPLE
COMMON
UNIVERSAL INPUT 5
P15
WHITE
CLOGGED FILTER SWITCH IN
24 VAC OUT
P16
MINT
BINARY INPUT 2
24 VAC OUT
P17
RED
BINARY INPUT 3
24 VAC OUT
P18
PINK
BINARY INPUT 4
24 VDC OUT
P19
ORANGE
BINARY INPUT 5
24 VDC OUT
J4
GREEN
UNIVERSAL INPUT 7
24 VDC OUT
J5
GREEN
COMMON
UNIVERSAL INPUT 6
J6
GREEN
COMMON
ANALOG OUTPUT 2
P20
BLUE
BINARY OUTPUT 4
SUPPLY VOLTAGE IN
P21
YELLOW
COMMON
ANALOG OUTPUT 3
J11
BLACK
ADDRESS 1
GND
ADDRESS 2
GND
ADDRESS 3
GND
ADDRESS 4
GND
P8
BLACK
24 VAC RELAY
COMMON
P7
GREEN
24 VAC RELAY
COMMON
P6
BROWN
BINARY OUTPUT 1
COMMON
P5
IMC BUS WHITE
24 VAC
COMMON
IMC+
IMC-
P4
IMC BUS WHITE
24 VAC
COMMON
IMC+
IMC-
P3
MODBUS +
MODBUS -
COMMON
P2
MODBUS +
MODBUS -
COMMON
P1
BLACK
24 VAC OUT
RA SMOKE DETECTOR INPUT
COMMON
J1
WHITE
COMMON
UNIVERSAL IO 1 (ALT)
5 VDC OUT
RAT
24 V IN
DAMPER POSITION OUT
DAMPER POSITION IN
COMMON
ECA
PPM87
OAH
RAH
24 VAC IN
SMOKE DETECTOR OUT
COMMON
RAS D
R
P
BL
PPM88
CFS
24 V IN
DAMPER POSITION OUT
DAMPER POSITION IN
COMMON
RBA
PPM201
BL
BL
BR
BR
R
R
Y
Y
BK
BK
O
O
PPF62
R
BL
O
J11
PPF87
J5
PPF201
BK R BL
J1
BL
BL
Y
Y
R/BK
R/BK
P11
BK R
J15
PPF86
BK
BK
R
R
BL
BL
O
O
J4
FRESH AIR OPTIONS MODULE
-H
-H
XFR
SHEET 3
UC-P4
TO WCI
INSET A
HORIZONTAL LOW LEAK ONLY
-
+
GND
24VAC
LINKXFMR
WCI
WIRELESS COMMUNICATIONS
MODULE
TO LINE 135
SHEET 5
TO LINE 250
IOM-P4
OPTIONAL RETURN AIR SMOKE DETECTOR
OPTIONAL RETURN AIR HUMIDITY SENSOR
OPTIONAL OUTDOOR AIR HUMIDITY
OPTIONAL RETURN AIR TEMP SENSOR
OPTIONAL MOTORIZED ECONOMIZER
FILTER SWITCH
OPTIONAL
CLOGGED
OPTIONAL POWER EXHAUST
OPTIONAL MOTORIZED ECONOMIZER
SP2
SP3
SP4
TO LINE 322
SHEET 6
J8-1
TO LINE 320
PPF87-1
SHEET 6
SP1
FRESH AIR OPTIONS MODULE ONLY PRESENT ON CERTAIN UNIT CONFIGURATIONS. SEE INSET "A" FOR
UNITS WITHOUT FRESH AIR OPTIONS MODULE
RETURN AIR TEMP SENSOR PRESENT ON UNITS WITH DIFFERENTIAL DRY BULB, REFERENCE ENTHALPY,
AND COMPARATIVE ENTHALPY CONTROL
OUTDOOR AIR HUMIDITY SENSOR PRESENT ON UNITS WITH REFERENCE ENTHALPY AND COMPARATIVE
ENTHALPY CONTROL
RETURN AIR HUMIDITY SENSOR PRESENT ON UNITS COMPARATIVE ENTHALPY CONTROL
FAOM
1
2
3
4
5
6
1
2
1
2
3
4
1
2
3
1
2
3
4
1
2
3
4
12 12 12 12 12 12
1
2
1
2
1
2
1
2
1
2
1
2
3
4
5
6
7
8
1
2
1
2
1
2
12341234123123123
1
2
3
1
2
3
4
5
6
1
2
3
4
1
2
1
2
3
4
1
2
1
2
3
4
123
1
2
3
4
5
6
7
8
1
2
3
1
2
3
12
1
2
1
2
1
2
1234
1
2
3
4
1
2
3
4
1
2
3
4
1
2
3
4
1
2
3
4
1
2
4
3
1
2
3
4
1
2
3
4
1234
1
2
3
4
1
2
Wiring – FIADMPR101*/102*/103*
12 ACC-SVN231C-EN

Related product manuals