EasyManua.ls Logo

Trane TEM6A0C42H41SC - Outline Drawing

Trane TEM6A0C42H41SC
32 pages
Print Icon
To Next Page IconTo Next Page
To Next Page IconTo Next Page
To Previous Page IconTo Previous Page
To Previous Page IconTo Previous Page
Loading...
20
18-GF74D1-1R-EN
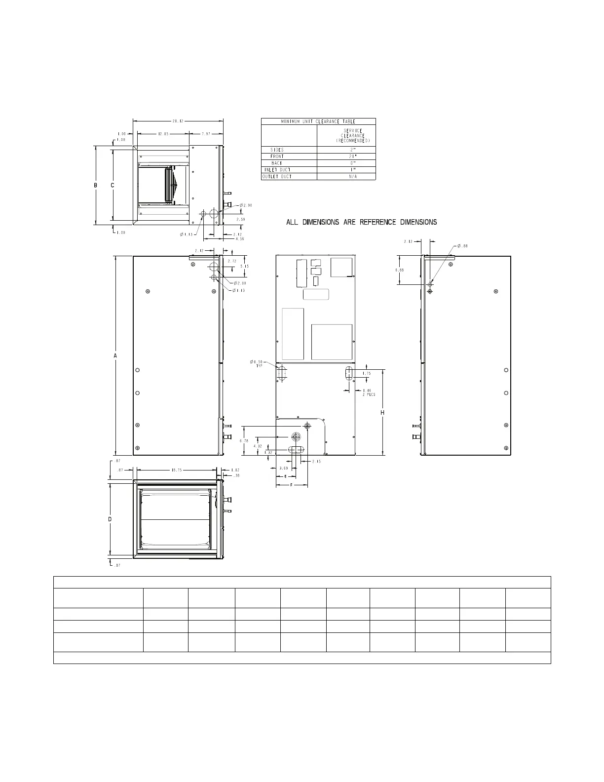
Outline Drawing
DWG D806626
NOTE: THIS UNIT IS APPROVED FOR INSTALLATION
CLEARANCES TO COMBUSTIBLE MATERIAL AS
STATED ON THE UNIT RATING NAMEPLATE
PRODUCT DIMENSIONS
Air Handler Model A B C D E F H
Flow
Control
Gas Line
Braze
TEM6A0B24, 30
46.77 18.50 16.50 16.75 4.68 7.33 20.09 TXV
3/4
TEM6A0C36, 42
51.27 23.50 21.50 21.75 7.01 9.66 24.59 TXV
7/8
TEM6A0C48/
TEM6B0C60
57.40 23.50 21.50 21.75 4.68 9.66 27.19 TXV
7/8
All dimensions are in inches

Related product manuals