EasyManua.ls Logo

Trane YSC120ED - Page 12

Trane YSC120ED
48 pages
Print Icon
To Next Page IconTo Next Page
To Next Page IconTo Next Page
To Previous Page IconTo Previous Page
To Previous Page IconTo Previous Page
Loading...
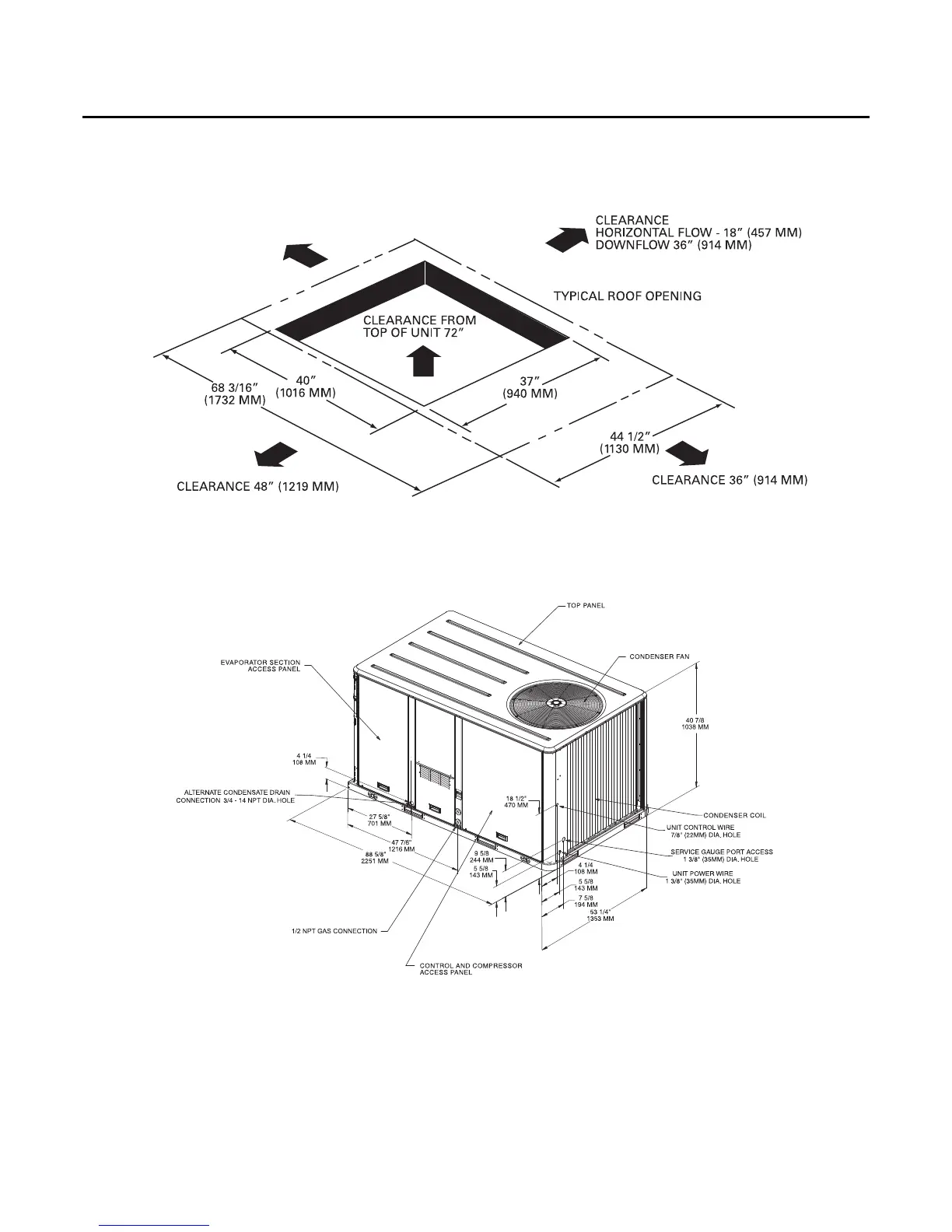
Unit Dimensions
12 RT-SVX38B-EN
Figure 4. 5 tons standard efficiency - unit clearance and roof opening
Note: All dimensions are in inches/millimeters.
CLEARANCE 36” (914 MM)
Figure 5. 6, tons standard efficiency
Note: All dimensions are in inches/millimeters.

Table of Contents

Related product manuals