EasyManua.ls Logo

Trojan MULTIFUNTION SMITH MACHINE - Page 20

Trojan MULTIFUNTION SMITH MACHINE
60 pages
Print Icon
To Next Page IconTo Next Page
To Next Page IconTo Next Page
To Previous Page IconTo Previous Page
To Previous Page IconTo Previous Page
Loading...
20
99
84
84
79
2
75
27
41
64
64
27
ASSEMBLY STEPS
ASSEMBLY STEPS
ASSEMBLY STEPS
79
1
1
83
3
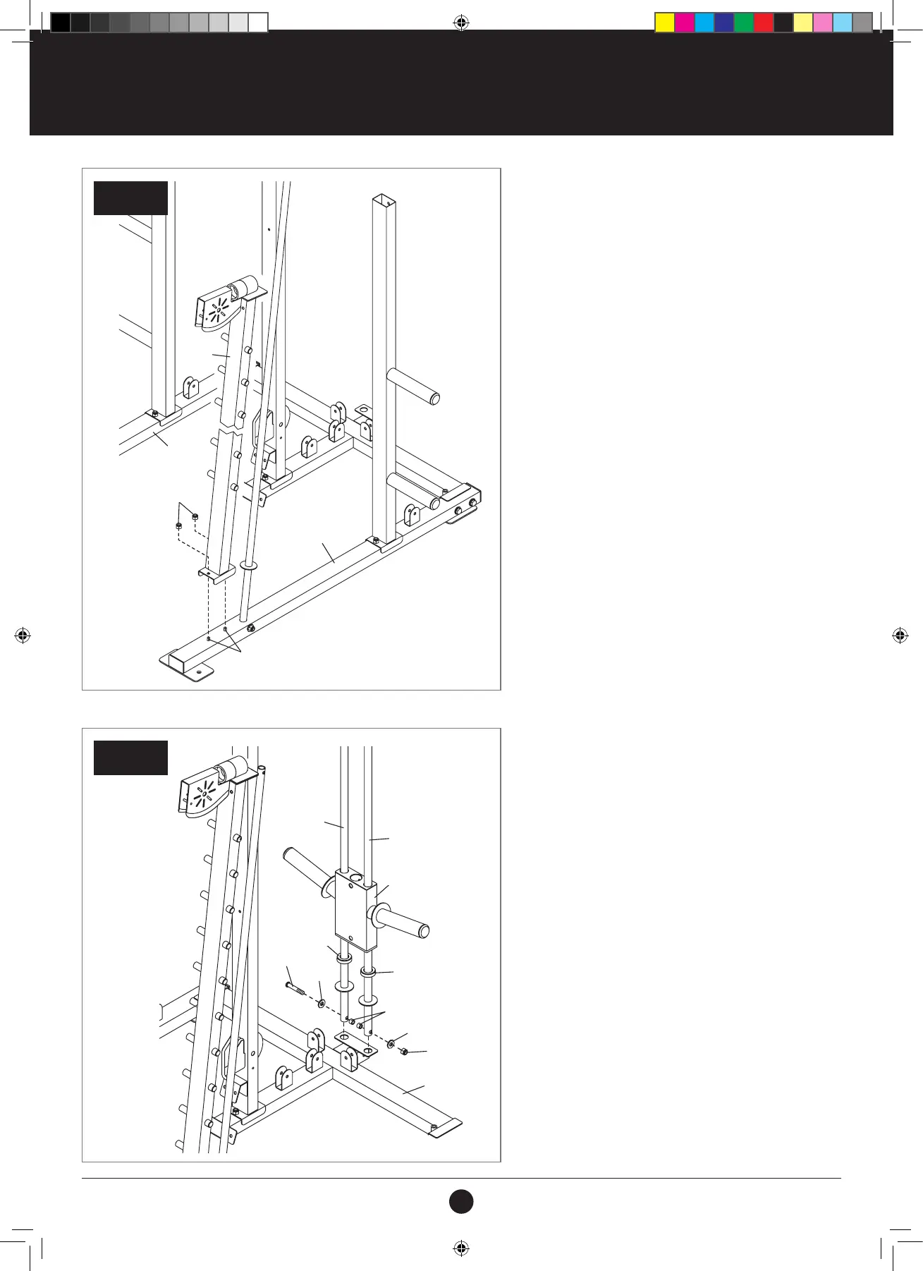
STEP 7:
1. Attach the Left Upright (3) to the left Base (1)
with the indicated two M10 x 65 mm Carriage
Bolts (83) and two M10 Locknuts (79).
Do not tighten the Locknuts yet.
2. Repeat this step with the Right Upright (not
shown).
STEP 8:
1. Orient the two Carriage Guides (64) so that the
rings are near the bottom.
2. Attach the Carriage Guides (64) to the Centre
Base (2) with an M10 x 155 mm Bolt (99), two
M10 Washers (84), two 6 mm Spacers (75), and
an M10 Locknut (79).
Do not tighten the Locknut yet.
3. Slide two Carriage Bumpers (27) onto the
Carriage Guides (64). Slide the Weight Carriage
(41) onto the Carriage Guides as shown.
STEP 8
STEP 7
79
83
3
1
1
79
2
84
84
75
27
27
41
64
64
99
#21M05T035 Multifunction Smith Machine UM A4.indd 20 2021/06/24 11:27 AM

Related product manuals