EasyManua.ls Logo

Trojan MULTIFUNTION SMITH MACHINE - Page 26

Trojan MULTIFUNTION SMITH MACHINE
60 pages
Print Icon
To Next Page IconTo Next Page
To Next Page IconTo Next Page
To Previous Page IconTo Previous Page
To Previous Page IconTo Previous Page
Loading...
26
16
84
79
55
55
64
84
89
79
84
64
55
84
89
55
16
90
84
16
12
8
79
79
84
ASSEMBLY STEPS
ASSEMBLY STEPS
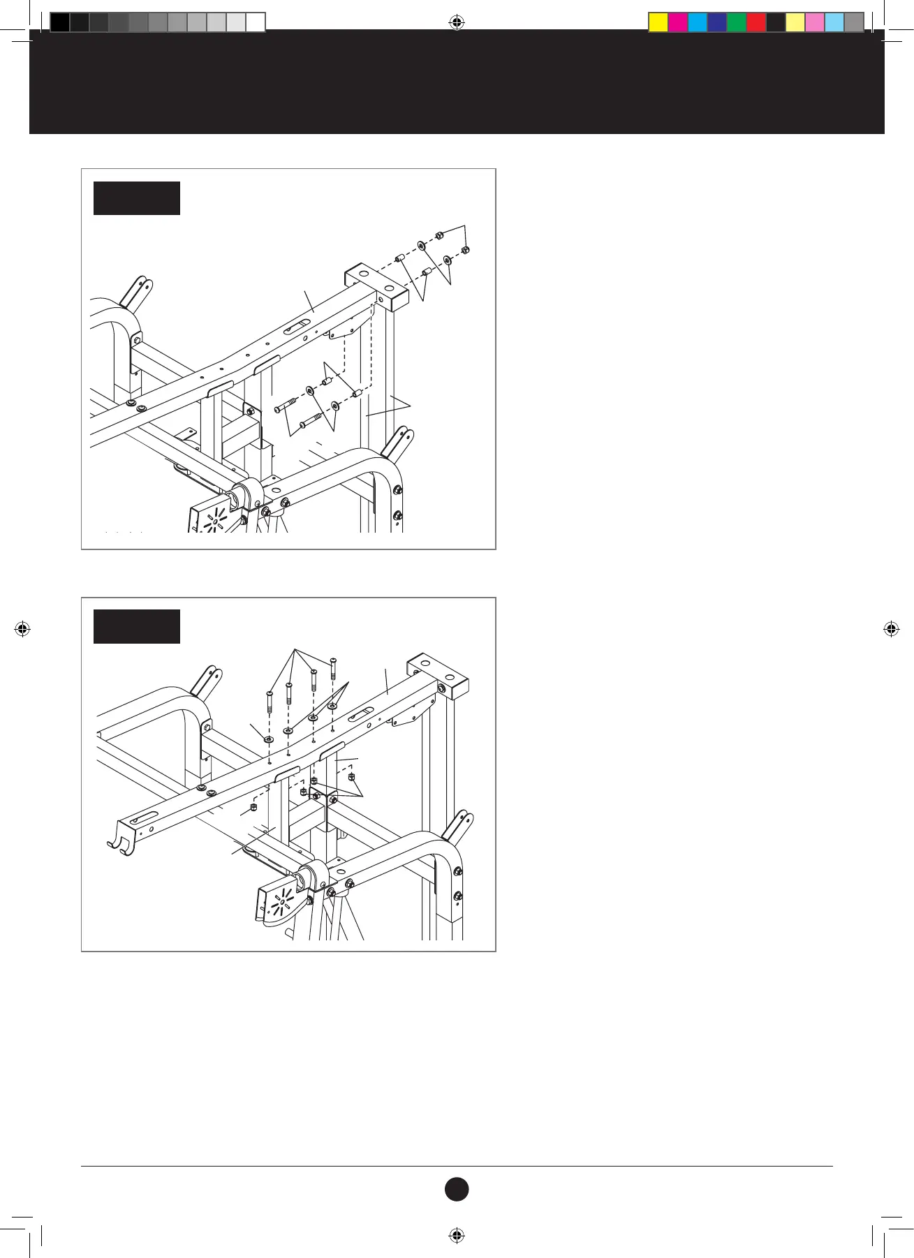
STEP 19:
1. Attach the Top Frame (16) to the Carriage
Guides (64) with two M10 x 90 mm Bolts (89),
four M10 Washers (84), four 25 mm Spacers (55),
and two M10 Locknuts (79).
Do not tighten the Locknuts yet.
STEP 20:
1. Attach the Top Frame (16) to the Arm Frame (12)
and the Backrest Upright (8) with four M10 x
68 mm Bolts (90), four M10 Washers (84), and
four M10 Locknuts (79).
Do not tighten the Locknuts yet.
STEP 20
STEP 19
90
84
84
79
8
79
12
16
#21M05T035 Multifunction Smith Machine UM A4.indd 26 2021/06/24 11:27 AM

Related product manuals