EasyManua.ls Logo

USFilter V-2000 - Page 100

Default Icon
126 pages
Print Icon
To Next Page IconTo Next Page
To Next Page IconTo Next Page
To Previous Page IconTo Previous Page
To Previous Page IconTo Previous Page
Loading...
IM 25.055AC UA (C/6-01)
AUTOMATIC CHLORINATOR - 3000LB/24HR
90
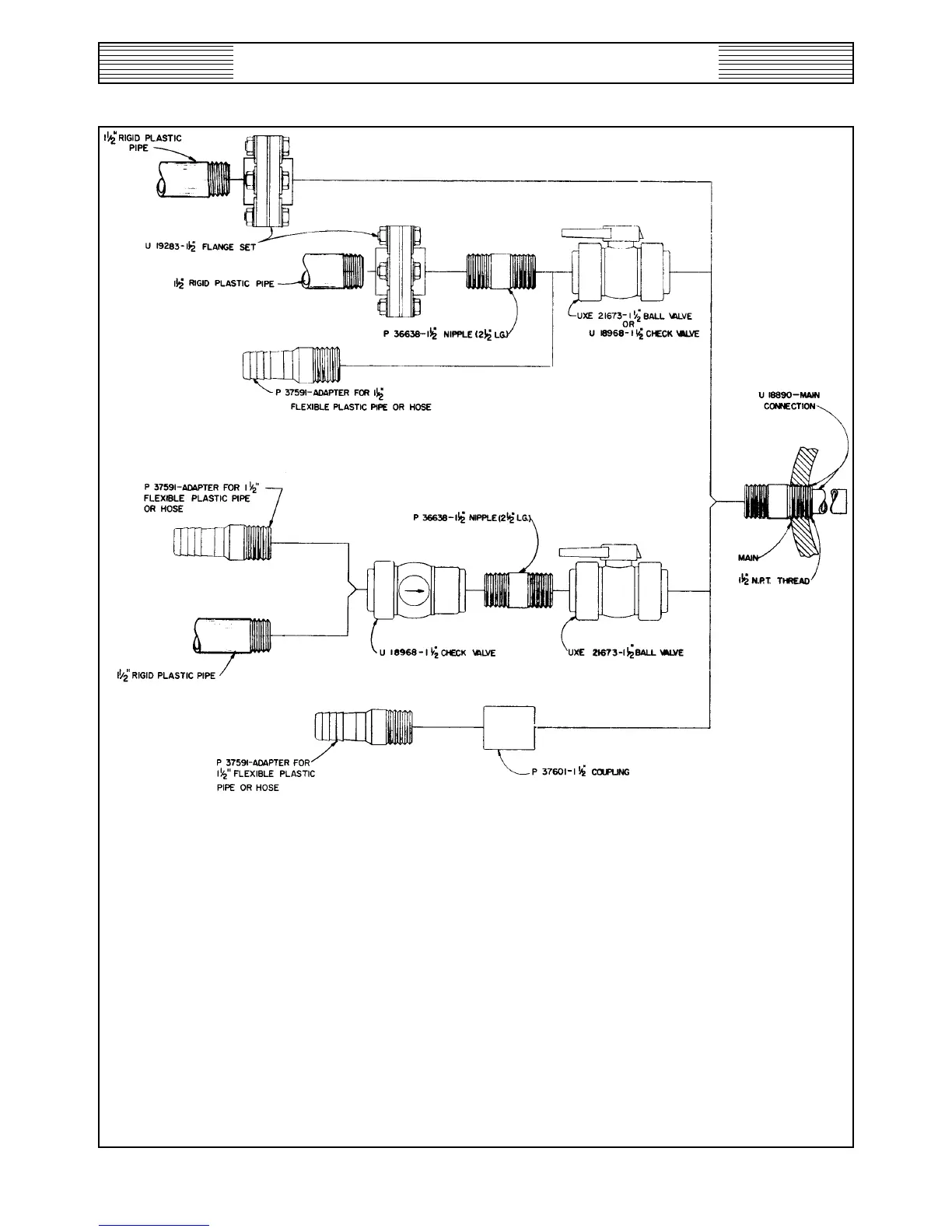
MAIN CONNECTION - PARTS
For 1-1/2” Solution Line
50.845.006.021
ISSUE 12 9-92
WARNING: TO AVOID POSSIBLE SEVERE PERSONAL INJURY OR DAMAGE TO EQUIPMENT, DO NOT EXCEED
WORKING PRESSURE OF HOSE OR FLEXIBLE PLASTIC PIPE. NEVER EXCEED 100 PSI AT 70° F.
USE RIGID PIPE BETWEEN DISCHARGE AND MAIN CONNECTIONS WHEN PUMPING HAZARDOUS
CHEMICALS.
CAUTION: FOR PROPER DISPERSION OF SOLUTION, THE END OF THE TUBE MUST EXTEND INTO THE MAIN,
APPROXIMATELY 1/2 TO 1/3 THE DIAMETER OF THE MAIN. CUT OFF THE TUBE IF TOO LONG.
WHEN ORDERING MATERIAL, ALWAYS SPECIFY MODEL AND SERIAL NUMBER OF APPARATUS.