EasyManua.ls Logo

USFilter V-2000 - Page 99

Default Icon
126 pages
Print Icon
To Next Page IconTo Next Page
To Next Page IconTo Next Page
To Previous Page IconTo Previous Page
To Previous Page IconTo Previous Page
Loading...
IM 25.055AC UA (C/6-01)
AUTOMATIC CHLORINATOR - 3000LB/24HR
89
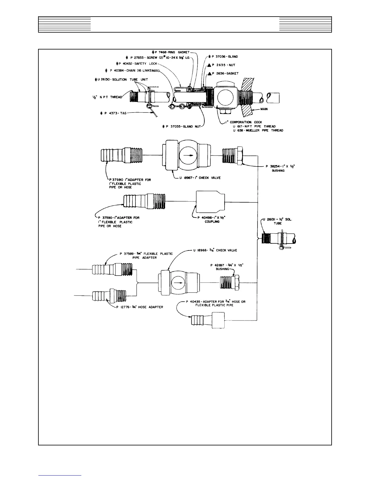
PLASTIC MAIN CONNECTION - PARTS
For 3/4” Or 1” Solution Lines With 1” Corporation Cock
50.845.06.011
ISSUE 14 2-93
NOTE: PART OF SOLUTION TUBE U26131. PART OF CORPORATION COCK U617 OR U638.
WARNING: TO AVOID POSSIBLE SEVERE PERSONAL INJURY OR DAMAGE TO EQUIPMENT, DO NOT EXCEED
WORKING PRESSURE OF HOSE OR FLEXIBLE PLASTIC PIPE. NEVER EXCEED 125 PSI AT 70° F.
USE RIGID PIPE BETWEEN DISCHARGE AND MAIN CONNECTIONS WHEN PUMPING HAZARDOUS
CHEMICALS.
CAUTION: FOR PROPER DISPERSION OF SOLUTION, THE END OF THE TUBE MUST EXTEND INTO THE MAIN,
APPROXIMATELY 1/2 TO 1/3 THE DIAMETER OF THE MAIN. CUT OFF THE TUBE IF TOO LONG AND
SHORTEN CHAIN AN EQUAL AMOUNT.
WHEN ORDERING MATERIAL, ALWAYS SPECIFY MODEL AND SERIAL NUMBER OF APPARATUS.