EasyManua.ls Logo

USFilter V-2000 - Page 39

Default Icon
126 pages
Print Icon
To Next Page IconTo Next Page
To Next Page IconTo Next Page
To Previous Page IconTo Previous Page
To Previous Page IconTo Previous Page
Loading...
IM 25.055AC UA (C/6-01)
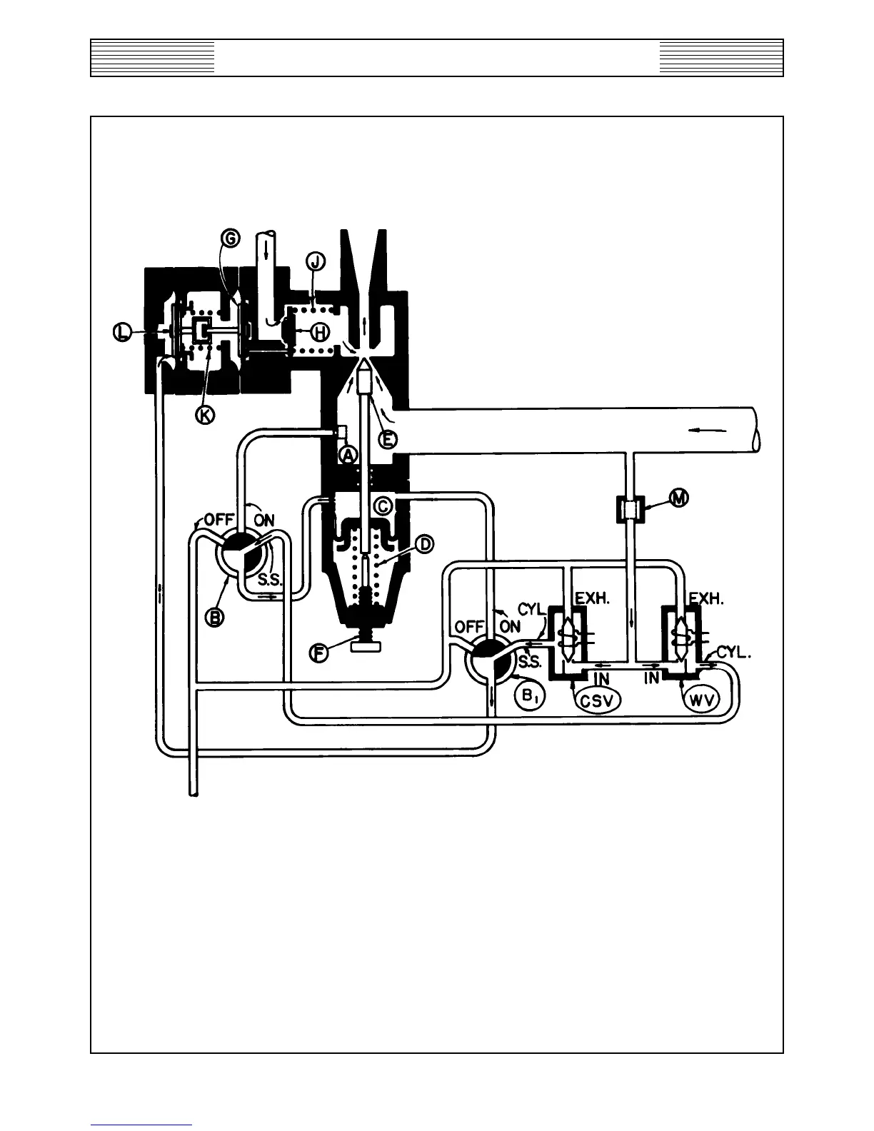
AUTOMATIC CHLORINATOR - 3000LB/24HR
29
2" INJECTOR - FLOW DIAGRAM
Prime & Flush Operation
25.100.181.031
ISSUE 3 5-77