EasyManua.ls Logo

USFilter V-2000 - Page 60

Default Icon
126 pages
Print Icon
To Next Page IconTo Next Page
To Next Page IconTo Next Page
To Previous Page IconTo Previous Page
To Previous Page IconTo Previous Page
Loading...
IM 25.055AC UA (C/6-01)
AUTOMATIC CHLORINATOR - 3000LB/24HR
50
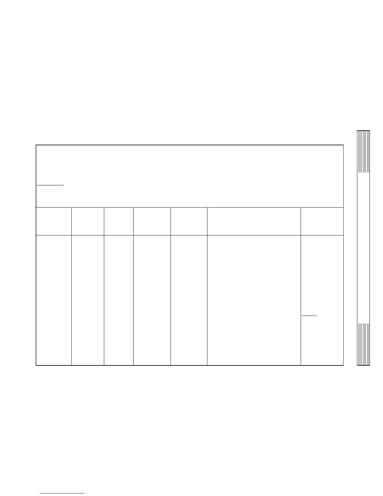
Table 4.1 - Troubleshooting With a Manometer and Vacuum Gauge
cisaB
:snoitcurtsnI
.)deefllufdna,flah,wol(wolfsagfoegnarllufehtrevomuucavehterusaeM.1
fI.steehsatadlangisnororedeefsagruoyrofmargaiDwolFehtnonevigserugifhtiwerusaemuoytahwerapmoC.2
.tnemeletxenehtkcehcdnaenolatnenopmoctahtevael,thgireraserugifeht
.melborpehttniopnipotyrassecensaskcehcekaM.3
.etairporppasikrowhcussetacidnitsilkcehcfiriaperdnaylbmessasidtnenopmocrofnoitcurtsnideliatedotrefeR.4
GNINRAW
SAGEHTFFONRUT,EGAMADTNEMPIUQEROYRUJNILANOSREPEREVESELBISSOPDIOVAOT:
RETAWFOSEHCNI001SWOHSEGUAGMUUCAVYLPPUSEHTLITNUTIAW.EVLAVRENIATNOCEHTTAYLPPUS
YLPPUSRETAWROTCEJNIEHTFFONRUT.POTSMOTTOBEHTNOSTSERTAOLFRETEMATOREHTDNA
.GNIPPOTS-NOITAREPOOTREFER.SNOITAREPOYLBMESSASIDYNAGNIMROFREPEROFEB
GNITAREPO
SMOTPMYS
ELBABORP
ESUAC
OTTAHW
ERUSAEM
OTWOH
ERUSAEM
LACIPYT
ROFSEULAV
REPORP
NOITAREPO
SKCEHCLANOITIDDAYDEMER
SAG
REDEEF
TONLLIW
PUEMOC
LLUFOT
SAG;DEEF
ERUSSERP
.ETAUQEDA
tneiciffusnI
rotcejni
.muucav
rotcejnI
.muucav
hctoN-V
.laitnereffid
eguagevresbO
tifienihcamno
fI.enosah
onsiereht
,eguagni-tliub
atcennoc
eguagmuucav
yrucremaro
taretemonam
ottelnisag
.rotcejni
-UatcennoC
retawebut
retemonam
dnamaertspu
fomaertsnwod
hctoN-V
.rebmahc
saghtiW
xis,gniwolf
fosehcni
yrucrem
.muminim
tuhssaghtiW
-82ot52,ffo
fosehcni2/1
citatsyrucrem
.muucav
71ot2/1-11
fosehcni
.retaw
tsujerusserpretawgnitarepoerusaeM
erusserpkcabdnarotcejnifomaertspu
.rotcejnifomaertsnwodtsuj
kcehC.atadsuoiverphtiwerapmoC
yletaidemmiwolfhtoomsrofgnipip
oN(.yawliatrotcejnifomaertsnwod
).cte,srecuder,seet,swoble
mgarhpaidhguorhtskaelriarofkcehC
.sevlavkcehcrotcejniepytmgarhpaidfo
rolanigramsimuucavrotcejnierehW
hctoN-V,enilredroberasciluardyh
rotacidnievitisneseromasilaitnereffid
ehtnahtmuucavgnitarepoetauqedafo
"gnibbob"A.eguagmuucavrotcejni
lanigramsetacidnitaolfretemator
.muucav
rotcejninaelC
dnataorht
.yawliat
ecalperroraelC
egrahcsidnoitulos
.gnibut
etauqedaedivorP
.erusserpretaw
ETON
regralA:
dnataorht
ylnoyamyawliat
ehtdnuopmoc
ehtsamelborp
wolfretaerg
retaergsetaerc
.erusserpkcab