EasyManua.ls Logo

Vaisala HMP7 - Attaching Ball Valve Kit to Process

Vaisala HMP7
118 pages
Print Icon
To Next Page IconTo Next Page
To Next Page IconTo Next Page
To Previous Page IconTo Previous Page
To Previous Page IconTo Previous Page
Loading...
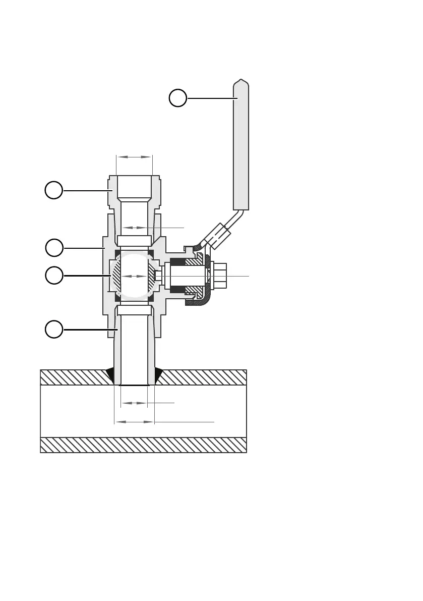
4.8.1 Attaching ball valve kit to process
G1/2
ISO 228/1
Ø21.5 (drilling)
Ø14
Ø14
Ø14
2
3
4
5
1
1 Ball valve handle: must point to the same direction as the ball valve body when installing.
2 Extension nipple, threads G1/2 ISO228/1 and R1/2 ISO7/1.
3 Ball valve body. When tightening the assembly, turn only from the ball valve body.
4 Ball of the ball valve.
5 Welding joint, threads R1/2 ISO7/1.
HMP Series with MMP8 and TMP1 User Guide M212022EN-F
30

Table of Contents

Other manuals for Vaisala HMP7

Related product manuals