EasyManua.ls Logo

Veit SG66 - Circuit Diagram

Veit SG66
35 pages
Print Icon
To Next Page IconTo Next Page
To Next Page IconTo Next Page
To Previous Page IconTo Previous Page
To Previous Page IconTo Previous Page
Loading...
Dampferzeuger VEIT SG66
VEIT SG66 Steam Generator
02.11.2022
29
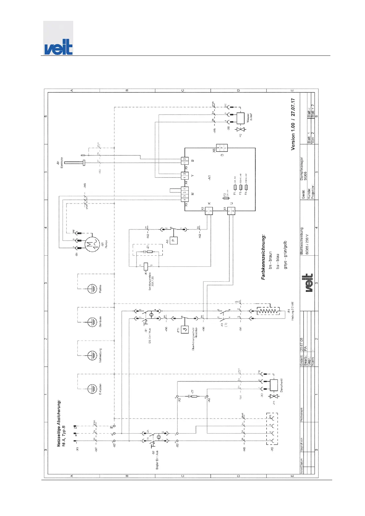
7.2 Schaltplan / Circuit Diagram

Table of Contents

Related product manuals